Light-filled two-bedroom first-floor apartment with garage and long lease in Tadworth village.
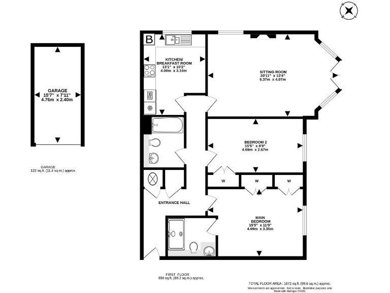
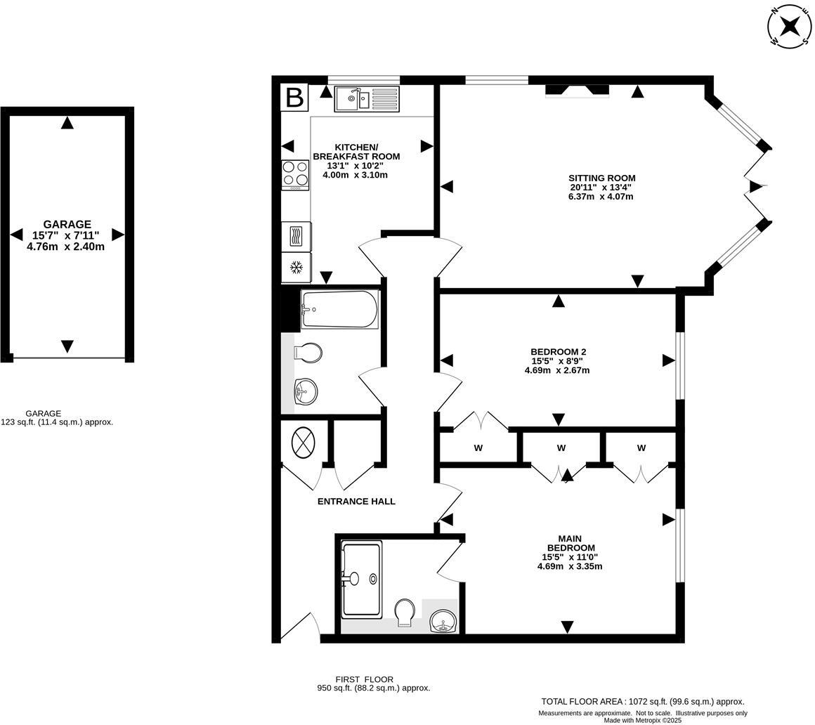
Large 1,072 sq ft first-floor apartment with high ceilings and natural light
South-facing rooms; sunny living spaces throughout the day
Two double bedrooms and two bathrooms including en-suite
Private garage plus allocated parking space
Share of freehold with approximately 996 years remaining on lease
Chain free sale for a quicker, simpler purchase
Kitchen dated (1990s fittings); likely needs refurbishment
Council tax described as expensive; factor higher running costs
This spacious first-floor apartment in Petersmead Close is a considered choice for downsizers seeking light, space and village convenience. At approximately 1,072 sq ft the layout feels closer to a small house than a typical flat, with large rooms, high ceilings and a sunny south-facing orientation that fills living spaces with daylight.
Practical positives include two double bedrooms, two bathrooms (one en-suite), an allocated parking space plus a private garage, and a very long lease of 996 years held on a share of freehold basis. The property is offered chain free, making a swift move possible for buyers who value certainty and simplicity.
There are sensible updates to consider: the kitchen fittings look dated (1990s style) and may benefit from refurbishment to suit contemporary tastes. Council tax is described as expensive; buyers should factor ongoing running costs into their budget. The building sits within a communal retirement/ageing neighbourhood classification, which suits many downsizers but may be less appealing to those seeking a younger, family-focused community.
Overall this is a rare, well-proportioned two-bedroom apartment in one of Tadworth’s most sought-after pockets. It combines comfortable, flexible accommodation with practical parking and long-term security of tenure — a practical, light-filled option for anyone looking to downsize without compromising on space or village convenience.
2 bedroom apartment for sale in Petersmead Close, Tadworth, KT20 — £400,000 • 2 bed • 2 bath • 918 ft²
2 bedroom flat for sale in The Avenue, Tadworth, KT20 — £425,000 • 2 bed • 2 bath • 747 ft²
2 bedroom retirement property for sale in Tadworth Street, Tadworth, KT20 — £235,000 • 2 bed • 1 bath • 898 ft²
2 bedroom flat for sale in The Avenue, Tadworth, KT20 — £425,000 • 2 bed • 2 bath • 944 ft²
2 bedroom apartment for sale in Station Approach, Tadworth, KT20 — £475,000 • 2 bed • 1 bath • 1200 ft²
2 bedroom apartment for sale in Station Approach, Tadworth, KT20 — £350,000 • 2 bed • 1 bath • 815 ft²






































































