NW3 4JJ - 2 bedroom apartment for sale in Belsize Park Gardens, Londo…

View on Property Piper

2 bedroom apartment for sale in Belsize Park Gardens, London, NW3

Summary - 43 SEMI-BASEMENT FLAT BELSIZE PARK GARDENS LONDON NW3 4JJ

2 bed 2 bath Apartment

**Standout Features:**
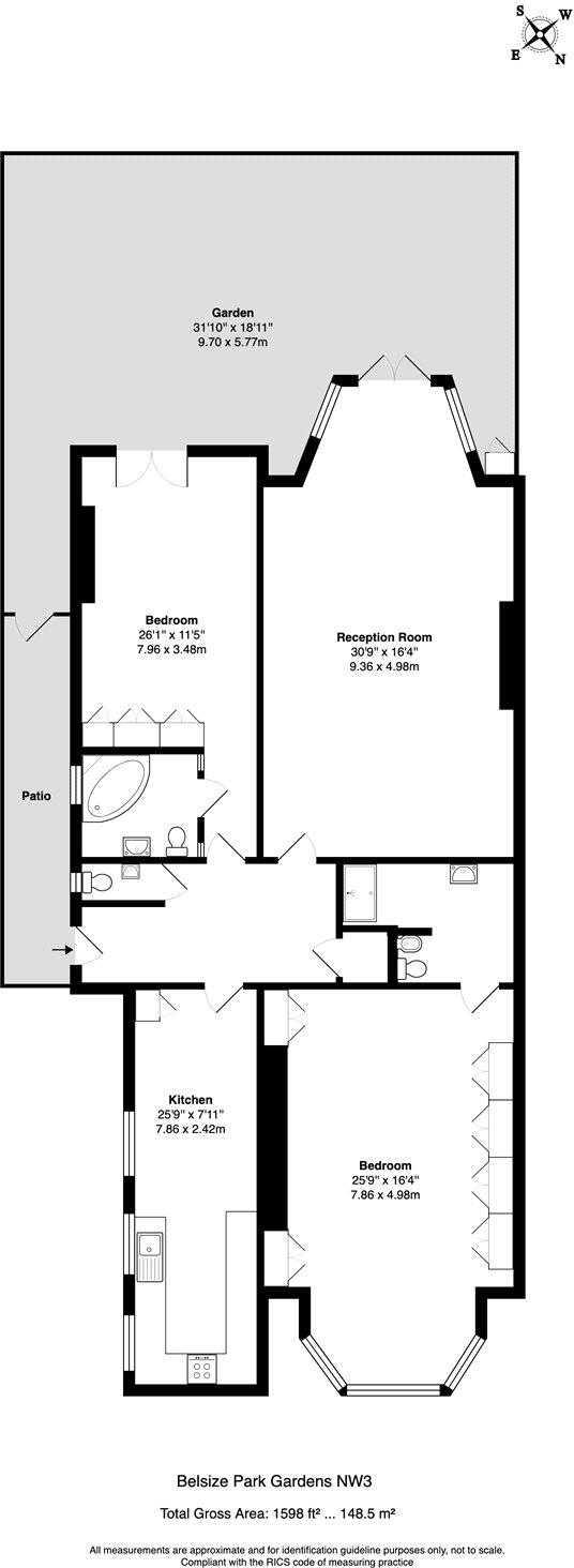
- Two spacious bedrooms and two modern bathrooms
- Private patio garden, ideal for outdoor relaxation
- Share of freehold with a semi-detached stucco front
- Expansive kitchen diner perfect for family gatherings
- Excellent mobile signal and fast broadband speeds
- Set in an affluent area with easy access to amenities
- Average crime rate in a quiet residential setting
- Council Tax Band G (on the higher end)

Nestled in the sought-after Belsize Park Gardens area, this beautifully presented two-bedroom apartment offers a perfect blend of contemporary design and classic charm. Enter into a spacious reception room bathed in natural light, seamlessly flowing into a private patio garden, creating an outdoor oasis for relaxation or entertaining. The well-appointed kitchen diner enhances the home’s family-friendly layout, while two sizable bathrooms add convenience.

This property, part of an elegant stucco-fronted house, carries the potential for personalization and future value increases, making it an attractive option for families, first-time buyers, or investors seeking rental possibilities in a cosmopolitan neighborhood. Its proximity to quality independent schools and local amenities further underscores its appeal. Don’t miss out on this rare opportunity—properties of this caliber are highly sought after and won’t be available for long!

Property Details

Brochure Descriptions

Image Descriptions

Rooms

Textual Property Features

Detected Visual Features

EPC Details

Nearby Schools

Nearest Bars And Restaurants

,,,,}

Nearest General Shops

,,}

Nearest Grocery shops

,,}

Nearest Supermarkets

,,}

Nearest Religious buildings

,,}

Nearest Medical buildings

,,,}

Nearest Airports

,}

Nearest Leisure Facilities

,,,,}

Nearest Tourist attractions

,,}

Nearest Train stations

,,,,}

Nearest Bus stations and stops

,,,,}

Nearest Hotels

,,}

Tags

Local Market Stats

AirBnB Data

Similar Properties

Meta

High Res Images

Compatible Images

Low res Images

Thumbnails

Raw Images

High Res Floorplan Images

Compatible Floorplan Images

Low res Floorplan Images

FloorplanImages Thumbnail

Raw Floorplan Images