Spacious single-storey living in Vyners catchment with large driveway and garden.
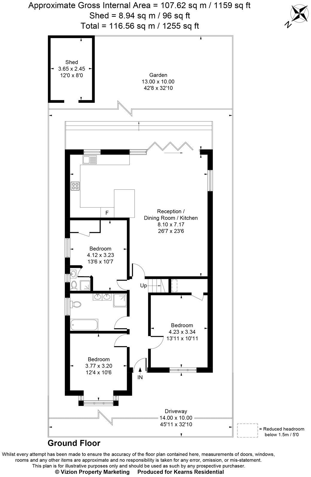
- Detached three-bedroom bungalow with two bathrooms, including ensuite
- Large open-plan kitchen, dining and reception; ideal for entertaining
- Wide driveway with off-street parking for multiple vehicles
- South-facing rear garden with detached shed and side access
- In Vyners school catchment; several outstanding/good local schools nearby
- Built 1930s–1940s: solid brick with internal insulation; period fabric
- Double glazing installed before 2002; may require replacement or upgrade
- Medium flood risk; tenure and council tax banding currently unknown
Set on a substantial plot in sought-after Ickenham, this detached three-bedroom bungalow blends period character with a contemporary open-plan interior. The principal living space is a large, bright open-plan kitchen, dining and reception area that opens directly onto the rear garden, creating a practical flow for family life and entertaining.
Practical strengths include a wide driveway providing off-street parking for multiple cars, a sizeable south-facing rear garden with a detached shed, and proximity to excellent schools including Vyners (catchment). Heating is by mains gas boiler with underfloor heating, and the property benefits from double glazing already installed.
Important points to note: the house dates from the 1930s–1940s with solid brick walls and internal insulation, and the glazing was installed before 2002 and may need updating. Flooding risk is assessed as medium for the area. Tenure and council tax band are not specified and should be confirmed.
This bungalow will suit families or downsizers seeking single-storey convenience in a very affluent neighbourhood, with scope for modest extension or refurbishment subject to planning. Broadband speeds are fast and local crime is very low, making this a comfortable, well-connected home in a desirable suburban setting.
3 bedroom detached bungalow for sale in Halford Road, Ickenham, UB10 — £795,000 • 3 bed • 2 bath • 1043 ft²
4 bedroom detached bungalow for sale in Oak Avenue, Ickenham, UB10 — £1,125,000 • 4 bed • 2 bath • 1355 ft²
3 bedroom detached bungalow for sale in Dukes Ride, Ickenham, UB10 — £975,000 • 3 bed • 2 bath • 1410 ft²
2 bedroom detached bungalow for sale in Kenbury Close, Ickenham, UB10 — £775,000 • 2 bed • 1 bath • 1033 ft²
4 bedroom bungalow for sale in Burford Close, Ickenham, Uxbridge, UB10 — £1,100,000 • 4 bed • 3 bath • 2254 ft²
3 bedroom detached bungalow for sale in Parkfield Road, Ickenham, UB10 — £700,000 • 3 bed • 1 bath • 1392 ft²


























































