1703 character home with large garden, parking for several cars and flexible family space.
No onward chain — ready for a quicker sale
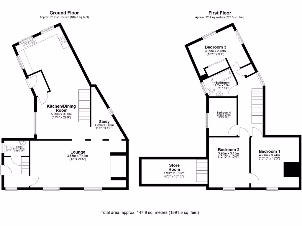
Step into one of Steeple Morden’s oldest homes — a beautifully preserved 1703 link-detached cottage that blends period charm with practical family living. With over 1,500 sq ft, four good-sized bedrooms, a separate study and three bathrooms, the layout suits a growing family or someone wanting flexible living space and home-working options. The lounge’s inglenook fireplace and exposed beams give genuine character; the open-plan kitchen/dining room opens to the large rear garden for relaxed day-to-day life.
Outside is a major draw: a generous, fully enclosed garden, mature trees and two paved/gravelled entertaining areas, plus off-street parking for multiple vehicles. The property is freehold and offered with no onward chain, so a purchase can proceed with minimal delay. Practical extras include fast broadband, convenient rail links from nearby Royston, and village amenities within easy reach.
Important considerations: this is a circa-1703 period house, so upkeep and sympathetic renovation may be needed over time; older properties commonly require greater maintenance and typically have lower energy efficiency than modern builds. Council tax is above average for the area. Local schooling is mixed — a nearby primary is rated Requires Improvement, though other good primary and secondary options are within reach.
Overall, this is a rare opportunity to own a piece of local history in a highly desirable South Cambridgeshire village. It will suit families or buyers who value character, space and a large garden, and who are comfortable with the maintenance demands of an historic home.
2 bedroom cottage for sale in Station Road, Steeple Morden, SG8 — £270,000 • 2 bed • 1 bath • 758 ft²
4 bedroom detached house for sale in Station Road, Steeple Morden, SG8 — £650,000 • 4 bed • 2 bath • 2284 ft²
4 bedroom detached house for sale in Craft Way, Steeple Morden, SG8 — £585,000 • 4 bed • 2 bath • 1414 ft²
4 bedroom cottage for sale in The Green, Steeple Morden, SG8 — £1,195,000 • 4 bed • 3 bath • 2597 ft²
3 bedroom detached house for sale in Brook End, Steeple Morden, SG8 — £450,000 • 3 bed • 1 bath • 814 ft²
3 bedroom detached house for sale in Bogs Gap Lane, Steeple Morden, SG8 — £685,000 • 3 bed • 2 bath • 1830 ft²










































































