Three-bedroom family home with garage, gardens and scope to personalise..
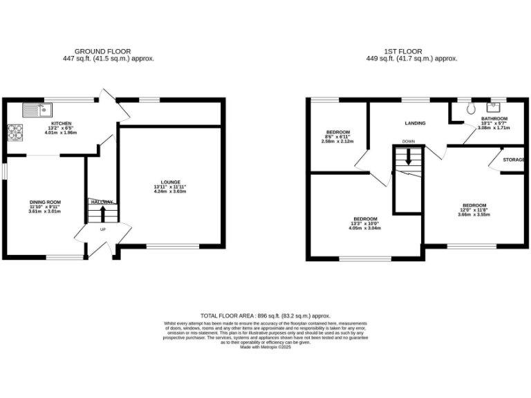
Three bedrooms with two reception rooms for flexible family living
Garage and private driveway providing secure off-street parking
Generous corner plot with front, side and rear gardens
Fitted kitchen with large walk-in pantry and garden access
Wet room only on first floor—no separate bath
Double glazing (post-2002) and mains gas central heating
Cavity walls as-built with no added insulation (likely energy upgrades needed)
Potential to extend or modernise subject to planning consents
Set on a generous corner plot, this three-bedroom semi-detached home offers practical family living with scope to personalise. Two reception rooms give space for play and dining, while the fitted kitchen includes a large walk-in pantry and direct garden access for easy indoor-outdoor flow.
Outside, the property benefits from a private driveway, garage and front, side and rear gardens — a useful layout for children, pets and gardening. The wet room on the first floor is modern and accessible, but there is no separate bath which may matter to some buyers.
Built in the 1930s, the house has double glazing fitted after 2002 and gas central heating via boiler and radiators. The cavity walls are as-built with no added insulation assumed, so expect energy-efficiency improvement work if reducing bills is a priority. There is clear potential to extend or upgrade (subject to consents) to increase living space and value.
The location offers good transport links, local schools and fast broadband with excellent mobile signal. Note the local area records higher deprivation indices despite low crime; buyers should consider wider local services and amenities when assessing suitability.
3 bedroom semi-detached house for sale in Lower Ty Gwyn Road, Garndiffaith, Pontypool, NP4 — £175,000 • 3 bed • 1 bath • 918 ft²
3 bedroom semi-detached house for sale in Llanover Close, Newport, NP20 — £270,000 • 3 bed • 1 bath • 1120 ft²
3 bedroom semi-detached house for sale in Hillcrest, Pontypool, NP4 — £270,000 • 3 bed • 1 bath • 785 ft²
3 bedroom semi-detached house for sale in St. Annes Crescent, St. Julians, NEWPORT, NP19 — £325,000 • 3 bed • 1 bath • 958 ft²
3 bedroom semi-detached house for sale in Overdene, Pontllanfraith, BLACKWOOD, NP12 — £190,000 • 3 bed • 1 bath • 735 ft²
3 bedroom semi-detached house for sale in Brookfield Road, Pontllanfraith, Blackwood, NP12 — £190,000 • 3 bed • 1 bath • 604 ft²


































































































