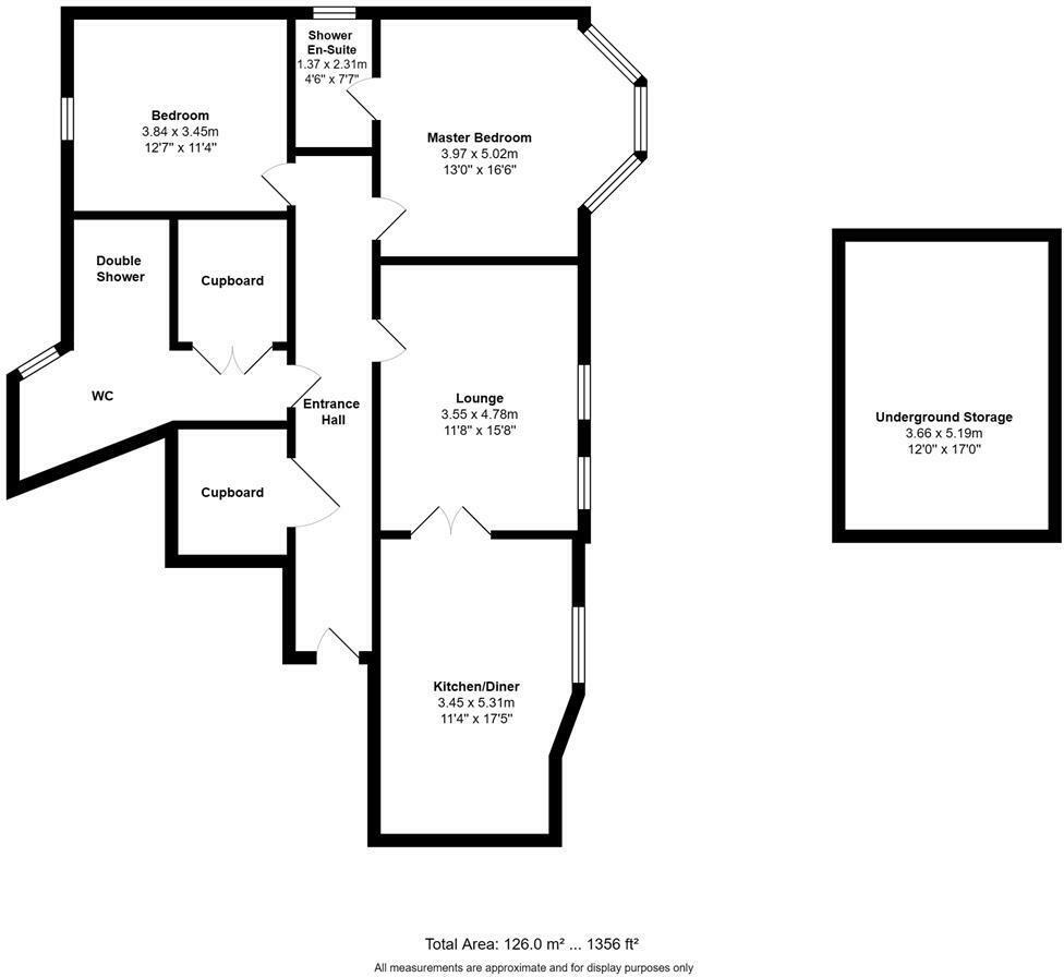
**Standout Features:**
- Ground floor with two generously sized double bedrooms
- Spacious lounge with an electric fireplace
- Kitchen/diner with integrated appliances
- Double shower room and en-suite in the master bedroom
- Abundant natural light from south-west facing windows
- Underground storage unit over 17 ft, access to communal gardens
- Off-street parking and chain-free availability
**Concise Property Summary:**
This exceptional ground floor apartment in the heart of Southport offers an impressive layout across 1356 sq ft, ideal for families or first-time buyers seeking comfortable living close to amenities. The open-concept lounge, featuring an electric fireplace, invites relaxation, while the modern kitchen-diner equipped with integrated appliances is perfect for hosting. Both double bedrooms provide ample storage with fitted wardrobes and the convenience of a master en-suite and a separate double shower room.
Natural light pours into the space, thanks to the south-west facing windows, creating a warm and inviting atmosphere. Enjoy additional conveniences like a cloakroom and generous underground storage, along with allocated off-street parking. The communal gardens provide a delightful outdoor space for residents to unwind. With local hotspots, shops, bars, and parks just a stone's throw away, this property offers not just a home, but an enviable lifestyle. Act fast—this opportunity is chain-free and won’t last long!
2 bedroom apartment for sale in Albert Road, Southport, PR9 — £140,000 • 2 bed • 2 bath • 894 ft²
2 bedroom apartment for sale in Albert Road, Southport, PR9 — £135,000 • 2 bed • 2 bath • 1303 ft²
2 bedroom apartment for sale in Scarisbrick New Road, Southport, PR8 — £240,000 • 2 bed • 2 bath • 852 ft²
3 bedroom apartment for sale in Knowsley Road, Southport, PR9 0HQ, PR9 — £140,000 • 3 bed • 2 bath • 1157 ft²
2 bedroom apartment for sale in Marine Gate Mansions, Promenade, Southport, Merseyside, PR9 0EF, PR9 — £210,000 • 2 bed • 2 bath • 1112 ft²
2 bedroom apartment for sale in Scarisbrick Street, Southport, PR9 — £80,000 • 2 bed • 1 bath • 859 ft²














































































