Village-centre home with private parking and attractive wraparound garden.
Refurbished interiors with underfloor heated tiled flooring downstairs
Grade II listed — restrictions on alterations and repair works
Two bedrooms with exposed timbers and vaulted ceilings
Gated private driveway plus off-street parking
Garden wraps around and opens onto the village green
Medium flood risk recorded for the location
EPC rating D; council tax band above average
Cosy rooms and low ceilings — not large open-plan spaces
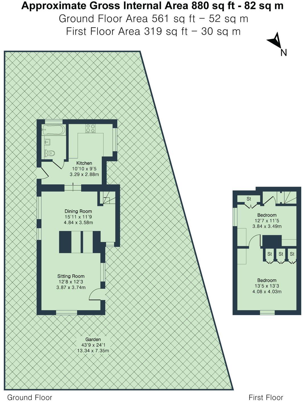
Tucked on The Green in Chalgrove, this Grade II listed 17th-century detached thatched cottage blends authentic period character with thoughtful modern refurbishment. The sitting room and dining area retain exposed timbers and a brick fireplace, while underfloor heated tiles run through much of the ground floor for everyday comfort.
Recently updated throughout, the cottage offers a stylish fitted kitchen and a contemporary bathroom alongside two charming bedrooms with vaulted timbers. Rooms are cosy with generally low ceilings, so the house will suit those seeking atmosphere and character rather than large open-plan spaces.
Outside, a gated driveway provides private off-street parking and a well-kept garden wraps around the property, opening onto the village green. The location places you at the heart of village life with good primary and secondary schools a short walk away and local amenities nearby.
Buyers should note the property’s listed status: external and structural changes will be restricted and may complicate works. There is a medium flood risk recorded for the area and the EPC is rated D. Council tax is above average. The cottage is offered chain free and is ready to move into following its recent refurbishment.
3 bedroom detached house for sale in Townsend, Harwell, Didcot, OX11 0DX, OX11 — £700,000 • 3 bed • 1 bath • 2011 ft²
2 bedroom cottage for sale in The College, Marsh Gibbon, Oxfordshire, OX27 — £450,000 • 2 bed • 1 bath • 901 ft²
2 bedroom detached house for sale in Mill Lane, Chalgrove, Oxford, Oxfordshire, OX44 — £345,000 • 2 bed • 1 bath • 717 ft²
3 bedroom cottage for sale in Westlington Green Dinton Buckinghamshire, HP17 — £650,000 • 3 bed • 1 bath • 1352 ft²
2 bedroom end of terrace house for sale in The Green, Sutton Courtenay, OX14 — £395,000 • 2 bed • 1 bath • 673 ft²
3 bedroom detached house for sale in Chapel Lane, Long Marston, Tring, Hertfordshire HP23 — £925,000 • 3 bed • 2 bath • 2103 ft²


































































































































