Historic lochside Victorian home with panoramic Skye views and proven holiday-let income.
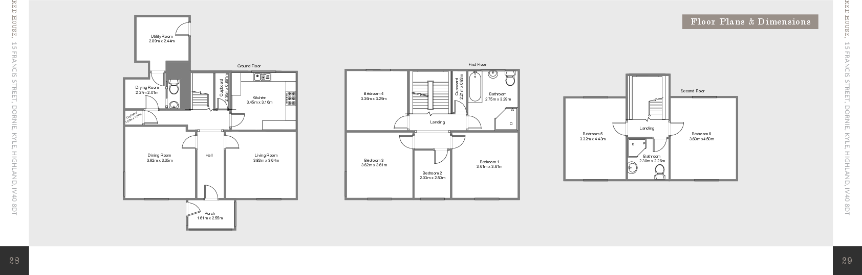
Six bedrooms with five rooms offering direct loch views
Mira House (Red House) is a newly renovated mid-19th-century detached home set in Dornie, where three lochs meet. The property retains period character—high ceilings, fireplaces, sash windows and decorative features—while offering a refurbished, move-in-ready interior and a modern, well-equipped kitchen. Many bedrooms offer direct loch and Isle of Skye views.
Five-star holiday-rental history demonstrates strong short-term let potential, yet the house also works as a spacious family home or a peaceful Highland retreat. The private front garden reaches the loch edge and there’s a larger rear lawn and deck for outdoor living and entertaining. Excellent mobile signal and average broadband suit modern household needs.
Practical considerations: the house provides six bedrooms but only two bathrooms, which may require adaptation for large family use or maximising guest throughput. The village and immediate area are classed as very deprived, and the property sits close to the A87, so occasional road noise is possible. Overall footprint is medium and the plot is village-scale rather than extensive estate grounds.
This is a property for buyers seeking character, outstanding loch and island views, and a proven holiday-let income stream in a highly photogenic Highland location. It suits families, investors wanting a reputable self-catering base, or anyone who values heritage charm combined with recent refurbishment.
4 bedroom detached house for sale in Lochcarron, Strathcarron, Ross-Shire, IV54 — £650,000 • 4 bed • 4 bath • 1402 ft²
2 bedroom semi-detached house for sale in 2 Lochside Houses, Helen Street, Dornie, Kyle, Highland, IV40 8ER, IV40 — £150,000 • 2 bed • 1 bath • 828 ft²
2 bedroom end of terrace house for sale in Burnside Cottage, Lochcarron, IV54 — £80,000 • 2 bed • 2 bath
3 bedroom semi-detached house for sale in Lochcarron, Strathcarron, IV54 — £250,000 • 3 bed • 2 bath • 905 ft²
5 bedroom detached house for sale in Main Street, Lochcarron, IV54 — £299,000 • 5 bed • 2 bath • 1234 ft²
3 bedroom detached house for sale in Kishorn, Strathcarron, Ross-Shire, IV54 — £535,000 • 3 bed • 3 bath • 1903 ft²


































































































































































