Sunny south-facing courtyard and ready-to-move interiors, offered chain-free.
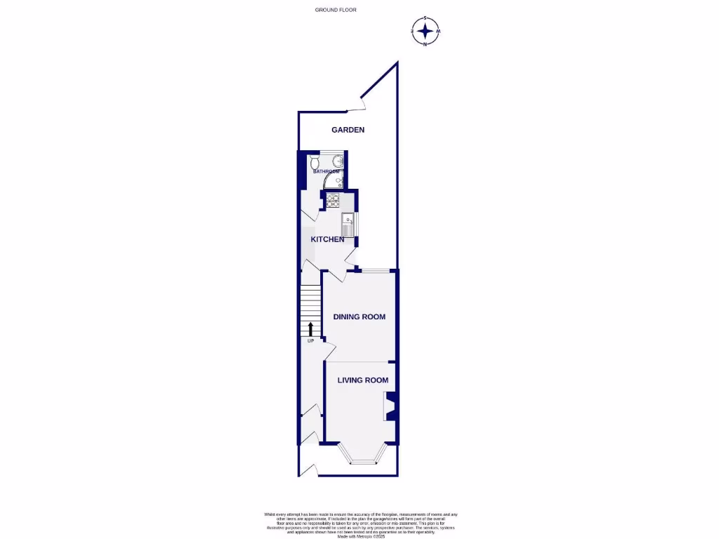
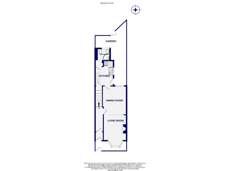
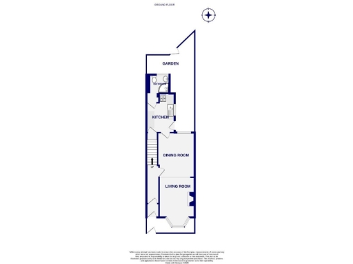
Three bedrooms over two storeys with period features and bay window
Set on a quiet street in Fishergate, this well-presented mid-terrace offers three bedrooms across two floors and a bright, south-facing courtyard. The house is ready to move into with neutral décor and genuine period character visible in the bay window, fireplace and original hall tiles. Its compact footprint suits first-time buyers, small families or investors looking for a city-centre rental.
Practical positives include a convenient city location close to York train station, the city centre and local amenities on Fulford Main Street, plus excellent mobile and broadband connectivity. The property is freehold, offered chain-free and sits in a low-crime, very affluent area with good school options nearby. There is scope to increase accommodation by converting the loft (subject to planning permission).
Buyers should note some constraints: the home has an EPC rating of D, the solid brick walls are assumed uninsulated, and there is a single shower room serving three bedrooms. Parking is on-street by permit only. These factors, together with the compact rear courtyard and average overall footprint, are important when assessing running costs and any future refurbishment plans.
Overall this is a characterful, centrally located terrace with immediate appeal and clear potential for modest improvement or loft extension (STPP). Early viewings are recommended for purchasers wanting a manageable family home close to transport links or investors seeking a well-located rental asset.
2 bedroom terraced house for sale in Alma Terrace, York, YO10 — £375,000 • 2 bed • 1 bath • 522 ft²
3 bedroom town house for sale in Edgeware Road, Fulford, YO10 — £350,000 • 3 bed • 1 bath • 699 ft²
4 bedroom terraced house for sale in Fulford Road, York YO10 4BE, YO10 — £650,000 • 4 bed • 1 bath • 1625 ft²
2 bedroom terraced house for sale in Alma Terrace, York, YO10 — £400,000 • 2 bed • 1 bath • 1113 ft²
3 bedroom terraced house for sale in Alma Terrace, Fulford, YO10 — £330,000 • 3 bed • 1 bath • 885 ft²
2 bedroom terraced house for sale in Hartoft Street, York, YO10 — £300,000 • 2 bed • 1 bath • 811 ft²


































































