Large adaptable home near Churchtown amenities and good local schools.
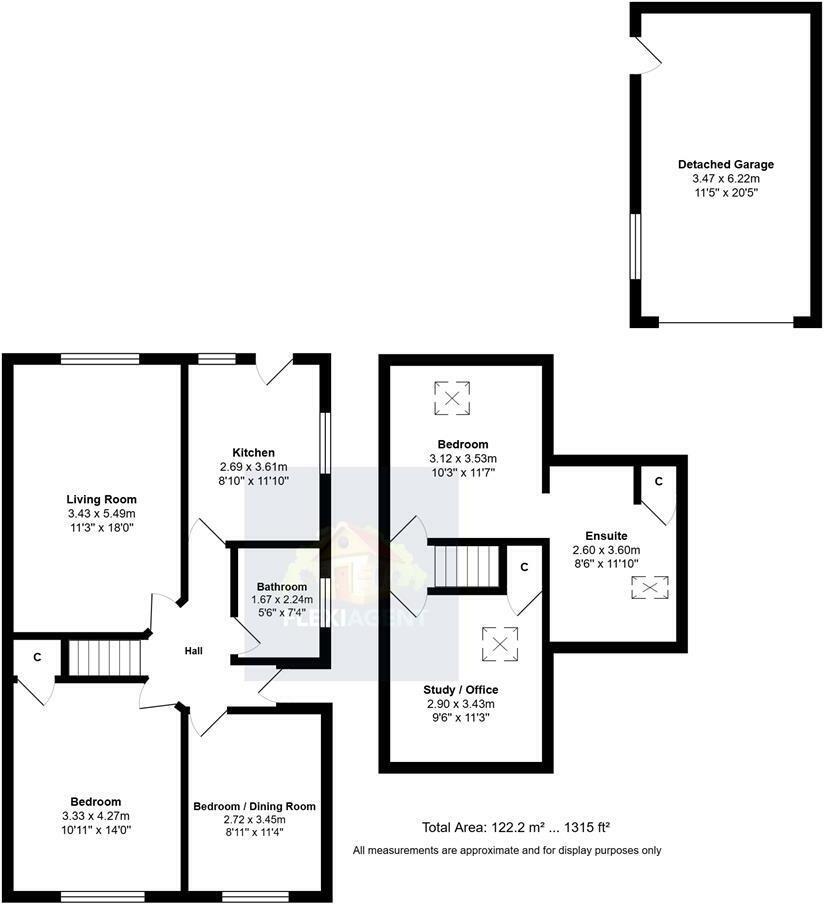
Approximately 1,315 sqft of flexible living space
Three bedrooms; two ground-floor, one first-floor with ensuite
Wrap-around south-west facing front garden; private rear garden
Detached garage with rear access; driveway parking available
Walking distance to Churchtown village, shops and Botanic Gardens
Recent updates: new carpets, bathroom/kitchen flooring, fireplace fitted
EPC rating D; energy performance below modern best practice
First-floor bedroom accessed by stairs; not fully step-free
This spacious three-bedroom semi-detached dorma bungalow offers flexible living across about 1,315 sq ft, ideal for families who want ground-floor accommodation with an additional first-floor bedroom and study. The house is well presented with recent carpet and flooring updates, a fitted kitchen with a new oven, and a comfortable living room with a feature fireplace.
Outside, a wrap-around south-west facing front garden, a private rear garden and a detached garage provide good outdoor space and practical parking. The property sits within walking distance of Churchtown village, local shops, Botanic Gardens and several well-rated primary and secondary schools—convenient for family life and local commutes.
Notable positives include freehold tenure, fast broadband availability and a decent plot in an affluent, low-crime area. Practical drawbacks to note: the principal upstairs bedroom is accessed via stairs, the EPC rating is D, and some installation dates (double glazing) are unknown. Buyers seeking step-free living or top-tier energy performance should consider these factors.
Overall this is a large, adaptable home in a sought-after Southport location. It suits buyers who value proximity to amenities and schools, want generous outdoor space, and are comfortable with a property built in the 1980s that has had selective recent improvements.
3 bedroom bungalow for sale in Waterfoot Avenue, Southport, Merseyside, PR8 3TE, PR8 — £260,000 • 3 bed • 1 bath • 784 ft²
3 bedroom semi-detached bungalow for sale in Larkfield Lane, Southport, PR9 8NP, PR9 — £229,995 • 3 bed • 1 bath • 689 ft²
3 bedroom semi-detached house for sale in Glencoyne Drive, Southport, PR9 9UU, PR9 — £220,000 • 3 bed • 1 bath • 1042 ft²
4 bedroom detached house for sale in Marshside Road, Southport, Merseyside, PR9 9TH, PR9 — £475,000 • 4 bed • 2 bath • 2145 ft²
3 bedroom detached bungalow for sale in Kingston Crescent, Marshside, PR9 — £240,000 • 3 bed • 1 bath • 732 ft²
3 bedroom semi-detached house for sale in Harrogate Way, Southport, PR9 — £240,000 • 3 bed • 2 bath • 1249 ft²


































































