**Property Highlights:**
- Tenanted HMO offering immediate rental income
- Great location, close to local amenities and main bus routes
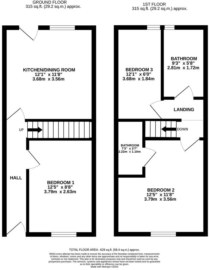
- 3 bedrooms (2 single, 1 double en-suite)
- Modern kitchen with built-in appliances and open-plan dining area
- Very affordable council tax
- Structurally sound but with potential for further renovations
- Size: 629 sq ft
Nestled in a vibrant urban setting, this Victorian mid-terrace property presents an excellent investment opportunity for those seeking a ready-made HMO (House in Multiple Occupation). With a total living space of 629 square feet, this charming home features three bedrooms, including a double en-suite room, making it an attractive option for both singles and students in the area. The modern kitchen is equipped with built-in appliances and opens onto a compact dining area, enhancing the living experience.
Conveniently located near local shops, parks, and main bus routes, this property benefits from close proximity to essential amenities. While the area has seen social challenges, the property boasts excellent mobile signal and fast broadband speeds, making it suitable for prospective tenants. With low council tax and current tenants in place, this HMO offers an ideal opportunity for first-time investors or those looking to expand their rental portfolio. Don't miss out on this prime investment before it's gone!
3 bedroom terraced house for sale in Briercliffe Road, Burnley, BB10 — £87,500 • 3 bed • 1 bath • 711 ft²
4 bedroom terraced house for sale in Bar Street, Burnley, BB10 — £119,995 • 4 bed • 3 bath • 656 ft²
4 bedroom terraced house for sale in Queensberry Road, Burnley, BB11 — £170,000 • 4 bed • 3 bath • 1094 ft²
4 bedroom terraced house for sale in Coultate Street, Burnley, BB12 — £115,000 • 4 bed • 4 bath • 1023 ft²
4 bedroom end of terrace house for sale in Grant Street, Burnley, BB11 — £115,000 • 4 bed • 3 bath • 754 ft²
2 bedroom terraced house for sale in Windsor Street, Burnley, Lancashire, BB12 — £85,000 • 2 bed • 1 bath • 784 ft²


































