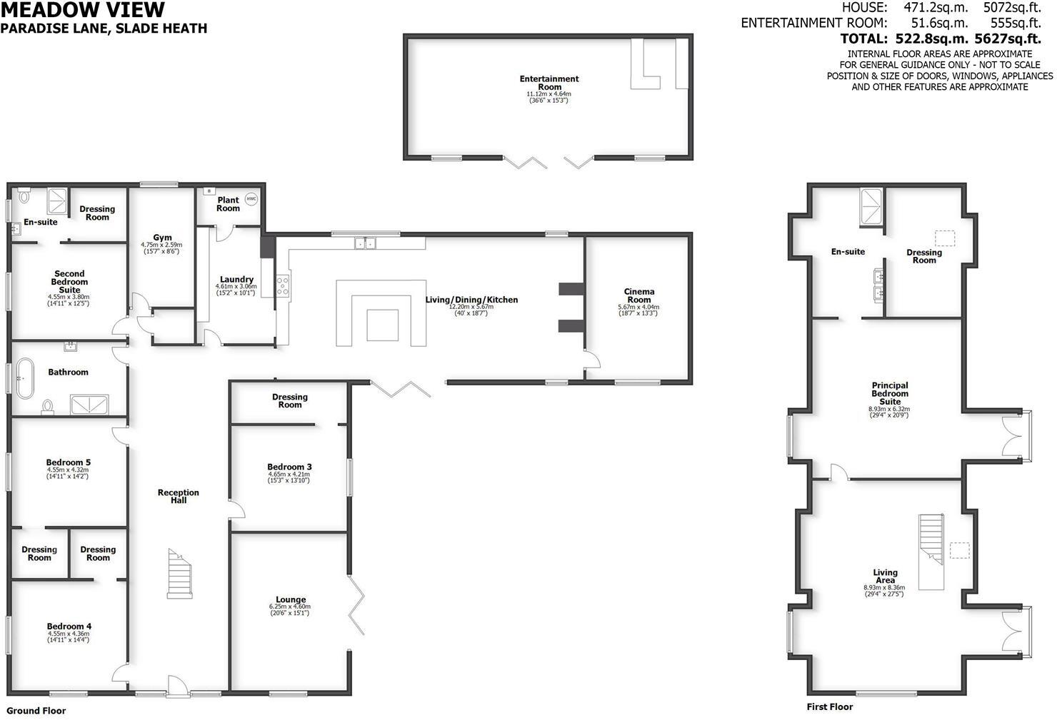
**Standout Features:**
- Exceptionally large detached property with 5 bedrooms and 3 bathrooms.
- Newly renovated in 2023, offering modern amenities and spacious living areas.
- Situated on a massive 2-acre plot with extensive gardens and an entertainment room.
- Ideal for families, offering ample parking and recreational space; low crime rates enhance safety.
- Excellent mobile signal and fast broadband connectivity.
- Located in a tranquil village setting with convenient access to schools and local amenities.
**Potential Concerns:**
- Planning permission for an additional five-bedroom house was not granted.
- Council tax is categorized as expensive.
**Property Summary:**
Welcome to Meadow View, an elegant detached family home nestled on a serene lane in Slade Heath, Wolverhampton. Spanning approximately 5627 square feet and set on a generous 2-acre plot, this newly renovated property offers a unique lifestyle with contemporary designs and ample outdoor space. Inside, the open-plan living, dining, and kitchen area provides a versatile hub for family gatherings, while bifold doors open to picturesque gardens, inviting natural light throughout. The first floor features a stunning principal suite with exceptional views, complemented by spacious additional bedrooms and dedicated spaces for leisure, including a cinema and gym/office.
Ideal for families or investors alike, this property presents both comfort and potential. Whether you’re envisioning a magnificent garden retreat or considering future renovations, you will appreciate the expansive grounds and the peaceful surroundings. Although planning for an additional residence was not granted, the ample space available allows for further development ideas. Don't miss this exclusive opportunity to secure a stunning family home in a low-crime, affluent area, where tranquility meets modern living. Embrace the chance to create your dream lifestyle at Meadow View before it's gone!
4 bedroom detached bungalow for sale in Meadow View, Mile Flats, Greensforge, Kingswinford, DY6 — £900,000 • 4 bed • 3 bath • 3515 ft²
4 bedroom detached house for sale in Orchard View, Paradise Lane, Slade Heath, Wolverhampton, WV10 7NZ, WV10 — £875,000 • 4 bed • 3 bath • 2735 ft²
5 bedroom detached house for sale in Clewlows Bank, Bagnall, Stoke-on-Trent, Staffordshire, ST9 — £380,000 • 5 bed • 1 bath • 2065 ft²
4 bedroom end of terrace house for sale in Heron Hall Barn, Pendeford Hall Lane, Wolverhampton, WV9 — £675,000 • 4 bed • 3 bath • 2325 ft²
4 bedroom detached house for sale in Great Moor Road, Pattingham, Wolverhampton, WV6 — £895,000 • 4 bed • 2 bath • 2777 ft²
5 bedroom detached house for sale in Pitchcroft Lane, Chetwynd Aston, Newport, Shropshire, TF10 — £1,650,000 • 5 bed • 4 bath • 6278 ft²






























































































