Elevated position with far-reaching fells and generous outdoor living.
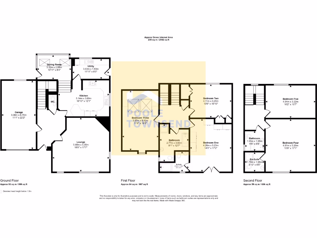
- Five double bedrooms and four bathrooms across three storeys
- Elevated plot with wide countryside and Lakeland fell views
- Large driveway, integral garage and gated additional parking
- Vaulted dining room and bright, high-ceiling interiors throughout
- Built 2003–2006; double glazing and mains gas central heating
- Freehold tenure; not at risk of flooding
- Council Tax Band G — quite expensive for running costs
- Local recorded crime levels: very high; consider security needs
This three-storey, architect-designed house offers generous family living across well-planned floors with excellent countryside and fell views. The ground floor features a large lounge with remote-controlled gas fire, a vaulted dining room overlooking the garden, and a breakfast kitchen with integrated appliances and adjoining utility. Five double bedrooms and four bathrooms provide flexible sleeping and ensuite options for a growing family.
Outside, the property sits on a large plot with a long driveway, integral garage and additional gated parking. Tiered lawns, paved patio and a balcony maximise the elevated outlook to open farmland and Lakeland fells, creating pleasant outdoor spaces for entertaining and everyday family use. The home was built in the mid-2000s, has double glazing and mains gas central heating throughout.
Practical points to note: the house is Freehold and not at risk of flooding, but council tax sits in Band G and local recorded crime levels are very high; buyers should factor these into their plans. Broadband speeds are fast and local schools are well regarded, making the location strong for families who value countryside views while staying close to Kendal town centre.
4 bedroom detached house for sale in Windermere Road, Kendal, LA9 — £498,000 • 4 bed • 2 bath • 1796 ft²
5 bedroom detached house for sale in 2 Chalk Grove, Kendal, LA9 — £630,000 • 5 bed • 3 bath • 1938 ft²
4 bedroom detached house for sale in Strawberry Fields, Kendal, LA9 7TA, LA9 — £560,000 • 4 bed • 4 bath • 1408 ft²
5 bedroom detached house for sale in 107 Parkside Road, Kendal, Cumbria, LA9 7LG, LA9 — £485,000 • 5 bed • 2 bath • 1584 ft²
4 bedroom detached house for sale in 12 Kendal Parks Road, Kendal, Cumbria LA9 7NG, LA9 — £575,000 • 4 bed • 2 bath • 2342 ft²
3 bedroom link detached house for sale in Mayfield Drive, Kendal, LA9 — £375,000 • 3 bed • 2 bath • 926 ft²






























































































































