**Standout Features:**
- Freehold public house investment located at The Stags Head, 55 Orsman Road, London, N1 5RA.
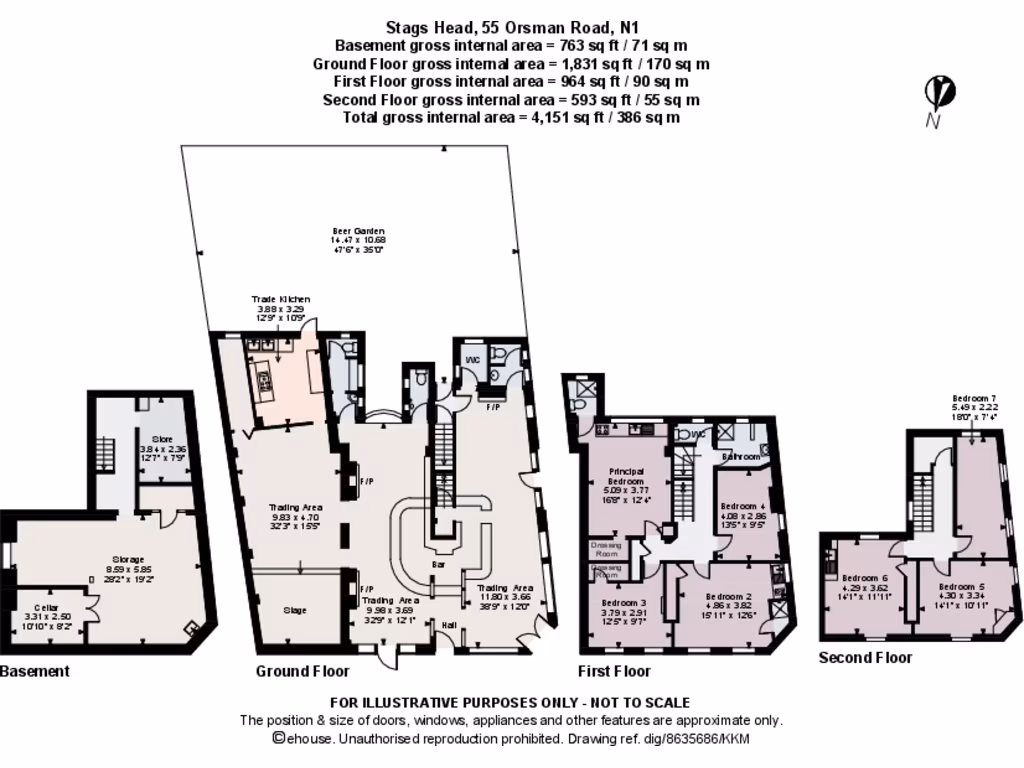
- Extensive space of 4,151 sq ft across four levels, with a current annual rent of £87,700 and a 20-year lease expiring in December 2041.
- Substantial outdoor customer area accommodating 84, ideal for social gatherings.
- Excellent connectivity, being 600m from Haggerston overground station with low crime in the area.
**Potential Concerns:**
- Listed status may restrict renovation or development options.
- Only 18 years remaining on the lease could pose challenges with mortgage lenders.
- Requires due diligence regarding the tenancy to ensure rental stability.
The Stags Head is a distinctive corner pub investment nestled in a vibrant, predominantly residential neighborhood of North London. Spanning over four levels, this property boasts a spacious trading area, accommodating up to 49 indoor customers, with additional external seating for 84, enhancing its appeal as a community hub. Generating a stable rental income, the lease is secured with The Artist Bar & Kitchen Ltd, with provisions for annual uncapped RPI increases, ensuring your investment remains lucrative over the long term.
Located in a bustling area with a plethora of amenities, this property is conveniently accessible within walking distance to schools, cafes, and recreational facilities, making it an attractive location for a diverse clientele. While the listed status may present certain developmental restrictions, the unique character of the property offers an opportunity for buyers looking to invest in an established business in a favorable urban setting. Don't miss out on this chance to own a piece of London's dynamic pub culture—it's a rare opportunity that won't last long on the market!
Commercial property for sale in Coningham Arms, 191 Uxbridge Road, London, W12 9RA, W12 — £1,350,000 • 1 bed • 1 bath • 5864 ft²
Pub for sale in Former Nomad, 58 Old Street, London, EC1V 9AJ, EC1V — £1,350,000 • 1 bed • 1 bath • 4043 ft²
Pub for sale in Guard House, No. 1 Street, Royal Arsenal, London, SE18 6GH, SE18 — £1,000,000 • 1 bed • 1 bath • 4473 ft²
Commercial property for sale in High Street, Hornsey, N8 — £120,000 • 1 bed • 1 bath • 3115 ft²
Pub for sale in The Baring, 55 Baring Street, London, N1 — £1,500,000 • 2 bed • 1 bath • 3772 ft²
Commercial property for sale in 600 Kingsland Road, Dalston, London E8 4AH, E8 — £900,000 • 1 bed • 1 bath • 2679 ft²


















































