**Standout Features:**
- Stunning 2-bedroom barn conversion with modern renovations.
- Approximately 8 acres of well-tended paddocks.
- Located near Dartmoor National Park, ideal for equestrian lovers.
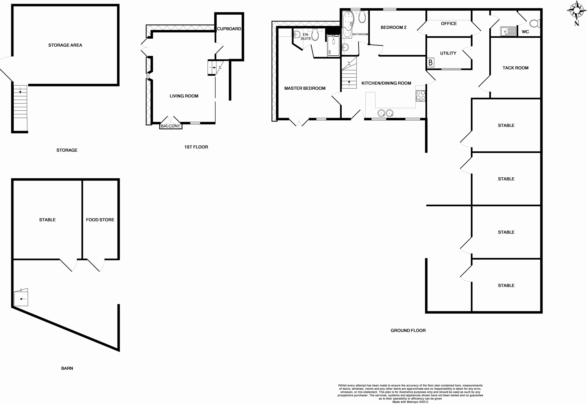
- Stable block with four stables, a tack room, utility room, and WC.
- Excellent grazing land with high-quality fencing.
- Fast broadband connectivity and low council tax band (B).
- Ample vehicle/horse trailer parking in gated courtyard.
**Summary:**
Discover the perfect blend of rustic charm and contemporary living in this exquisite 2-bedroom barn conversion nestled in the serene West Devon countryside. This property offers approximately 8 acres of beautifully maintained paddocks, ideal for equestrian pursuits, with direct access to the breathtaking landscapes of Dartmoor National Park. Built in 2002, the barn features a spacious kitchen/dining area, a vaulted living room with French doors leading to the garden terrace, and a master suite with en-suite bathroom, alongside a second bedroom and office space.
The property is complemented by a well-equipped stable block housing four stables, a tack room, and a utility area, all set within a gated courtyard that enhances its appeal for horse owners. While the condition is generally excellent, buyers should verify the operational status of fixtures and fittings. This hidden gem provides the opportunity for a tranquil lifestyle in a safe, affluent area, which is perfect for families and keen riders alike. With its expansive space and magnificent locale, this unique property won't last long—experience countryside life at its finest today!







































































































































































