**Standout Features:**
- One-bedroom modern mobile home in picturesque countryside
- Stunning wrap-around garden with raised decking area
- Double glazing throughout for year-round comfort
- Off-road parking available
- Located in a serene, secure site with only 15 caravans
- 12-month holiday usage license, perfect for weekend getaways (no letting allowed)
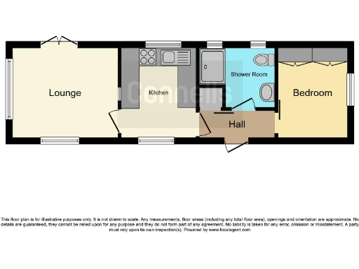
**Concise Property Summary:**
Discover this charming one-bedroom mobile home set in the breathtaking Severn Valley countryside, ideally nestled away from urban distractions. Enjoy a cozy lounge with a feature fireplace, a fitted kitchen with ample workspace, and a double bedroom with built-in wardrobes. The beautifully landscaped wrap-around garden provides both patio and lawn spaces, complete with two wooden sheds and a greenhouse—perfect for gardening enthusiasts.
This exclusive site, Woodcock Lodge, offers an exceptional opportunity for those seeking a tranquil retreat with 12-month holiday use for family members. The home benefits from double glazing and ample off-road parking, ensuring comfort and convenience. While broadband speeds may be slow, the area offers excellent mobile signal and a low crime rate, making it ideal for a peaceful lifestyle. Viewing is strictly by appointment, and with only a few homes on site, act quickly to secure this idyllic escape.
1 bedroom park home for sale in Woodcock Caravan Park, Hampton Loade, Bridgnorth, WV16 — £35,000 • 1 bed • 1 bath
2 bedroom park home for sale in Hampton Loade Park Homes, Hampton Loade, Bridgnorth, WV15 — £140,000 • 2 bed • 1 bath • 678 ft²
2 bedroom park home for sale in Severnside, Highley, Bridgnorth, WV16 — £210,000 • 2 bed • 1 bath • 851 ft²
2 bedroom park home for sale in Alveley, Bridgnorth, WV15 6JH, WV15 — £130,000 • 2 bed • 1 bath
2 bedroom park home for sale in Hampton Loade, Bridgnorth, Shropshire, WV16 — £45,000 • 2 bed • 1 bath • 456 ft²
2 bedroom lodge for sale in Hampton Loade, Bridgnorth, WV15 — £190,000 • 2 bed • 2 bath • 755 ft²






































































