Panoramic countryside views front and rear
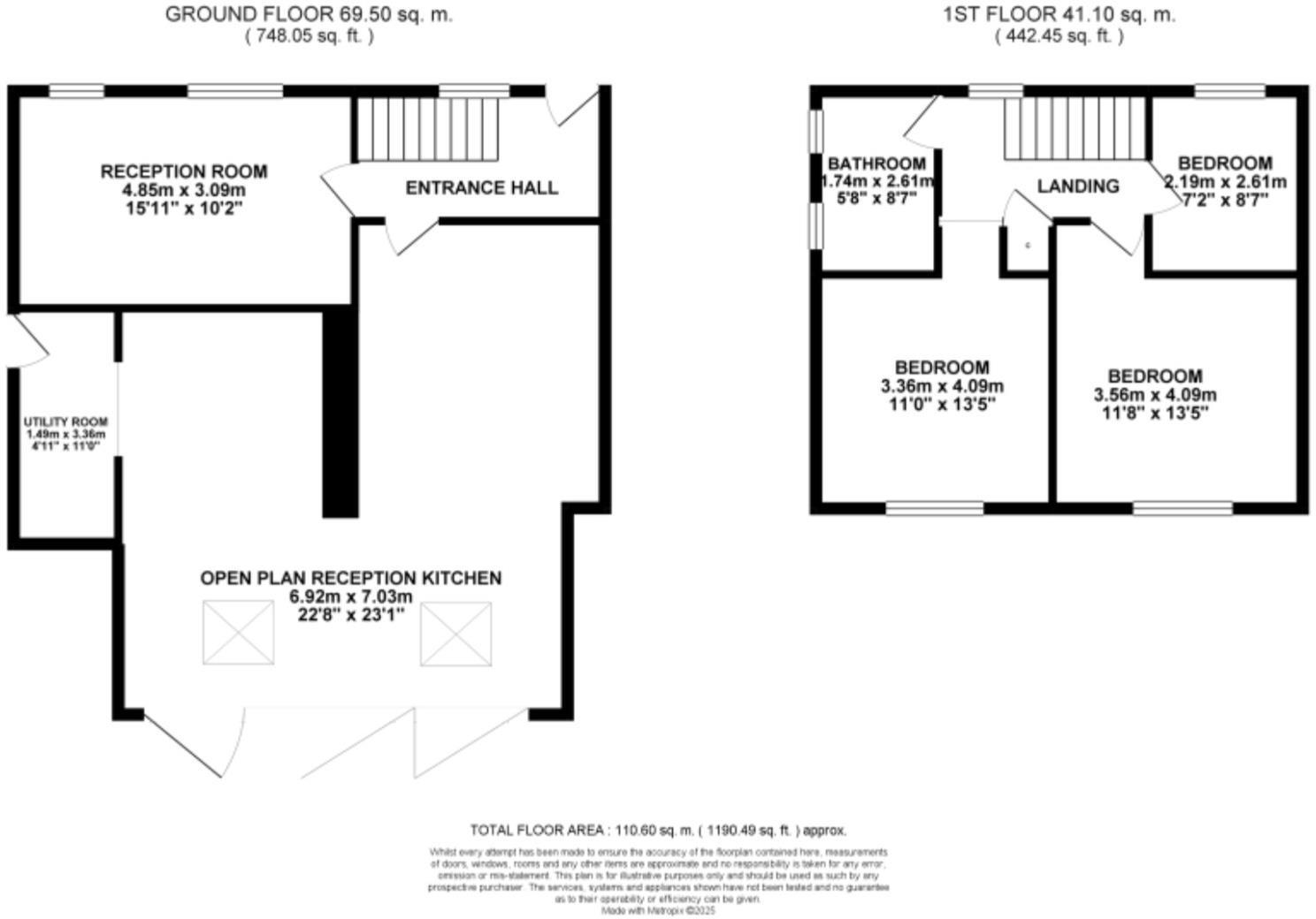
Set on peaceful Moorfield Lane, this extended three-bedroom semi-detached home marries countryside calm with contemporary living. The open-plan kitchen, dining and family room is a bright, flexible heart to the house — Velux roof windows and bi-fold doors frame panoramic farmland views and open directly to the rear patio.
Outside is a large, private garden designed for outdoor living, with an integrated outdoor kitchen and multiple seating areas. A newly landscaped driveway provides off-street parking and immediate kerb appeal. The property is freehold and in Council Tax Band C.
The interior has been thoughtfully updated with a utility room and a stylish family shower room, plus a versatile front reception room with a wood-burning stove. Broadband and mobile signal are strong, making the location practical for remote working while remaining a tranquil rural retreat close to Ormskirk and Southport.
Buyers should note some material details: heating is by electric storage heaters and the cavity walls are recorded as uninsulated (assumed), which may affect running costs and suggest further insulation work. There is one family shower room serving three bedrooms. These are straightforward issues to address but are important for budgeting future running and improvement costs.
3 bedroom semi-detached house for sale in Bescar Brow Lane, Scarisbrick L40 — £385,000 • 3 bed • 1 bath • 1646 ft²
3 bedroom link detached house for sale in Black Moss Lane, Scarisbrick, L40 — £300,000 • 3 bed • 1 bath • 1226 ft²
3 bedroom detached house for sale in Bescar Croft Gardens, Scarisbrick, Ormskirk, Lancashire, L40 — £525,000 • 3 bed • 2 bath • 1451 ft²
4 bedroom terraced house for sale in Woodland Avenue, Scarisbrick, Ormskirk, L40 — £325,000 • 4 bed • 2 bath • 1965 ft²
3 bedroom semi-detached house for sale in Croppers Lane, Ormskirk, L39 — £330,000 • 3 bed • 2 bath • 1218 ft²
3 bedroom semi-detached bungalow for sale in Bescar Brow Lane, Scarisbrick, L40 — £300,000 • 3 bed • 2 bath • 1325 ft²


































































































































































