B29 6RS - 3 bedroom semidetached house for sale in Corisande Road, Bi…

View on Property Piper

3 bedroom semi-detached house for sale in Corisande Road, Birmingham, West Midlands, B29

Summary - 140 CORISANDE ROAD BIRMINGHAM B29 6RS

3 bed 1 bath Semi-Detached

Flexible three-bedroom family home with loft bedroom, garden and off-street parking in Selly Oak..
Three double bedrooms including loft conversion
Extended ground floor with versatile rear space
Large rear garden with patio, mainly lawn
Off-street parking for two vehicles
Built 1930–1949, traditional bay-windowed style
Cavity walls assumed uninsulated — upgrade recommended
Single family bathroom only
Small plot size
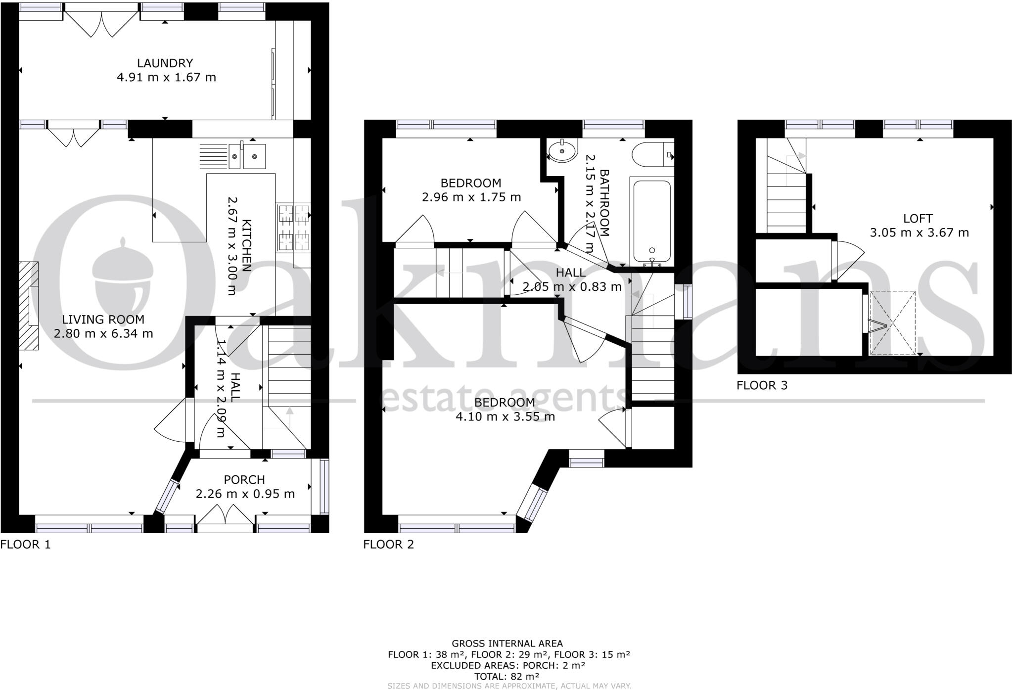
This extended three-bedroom semi-detached home on Corisande Road offers practical family living in Selly Oak, close to schools, local amenities and good transport links. The layout includes a through lounge, a modern kitchen and a useful rear extension currently used as a laundry area — flexible space for dining, a home office or playroom. A loft conversion provides a third double bedroom, making the house suitable for growing families or sharers.

Outside, there is off-street parking and a predominantly lawned rear garden with a patio — pleasant outdoor space for children and summer entertaining. The property dates from the 1930–49 period and has double glazing and a mains gas boiler with radiators. Council tax is moderate and the house sits in a low-crime, affluent area with fast broadband and excellent mobile signal.

Buyers should note a few practical points: the plot is small, the property has cavity walls assumed without insulation (upgrade likely needed for improved efficiency), and there is a single family bathroom. While the house is well-proportioned overall, some updating or insulating works would unlock energy savings and further value. Early inspection will show how the accommodation meets a family’s everyday needs.

Property Details

Image Descriptions

Floorplan Description

Rooms

Textual Property Features

Target Audience

AI Tags

Detected Visual Features

EPC Details

Nearby Schools

Nearest Bars And Restaurants

,,,,}

Nearest General Shops

,,}

Nearest Grocery shops

,,}

Nearest Supermarkets

,,}

Nearest Religious buildings

,,}

Nearest Medical buildings

,,,}

Nearest Airports

}

Nearest Leisure Facilities

,,,,}

Nearest Tourist attractions

,,}

Nearest Train stations

,,,,}

Nearest Bus stations and stops

,,,,}

Nearest Hotels

,,}

Tags

Local Market Stats

AirBnB Data

Similar Properties

Meta

High Res Images

Compatible Images

Low res Images

Thumbnails

Raw Images

High Res Floorplan Images

Compatible Floorplan Images

Low res Floorplan Images

FloorplanImages Thumbnail

Raw Floorplan Images