Quiet single-level home with garage and sunny garden, ready to personalise.
Two double bedrooms, single-storey bungalow ideal for downsizing
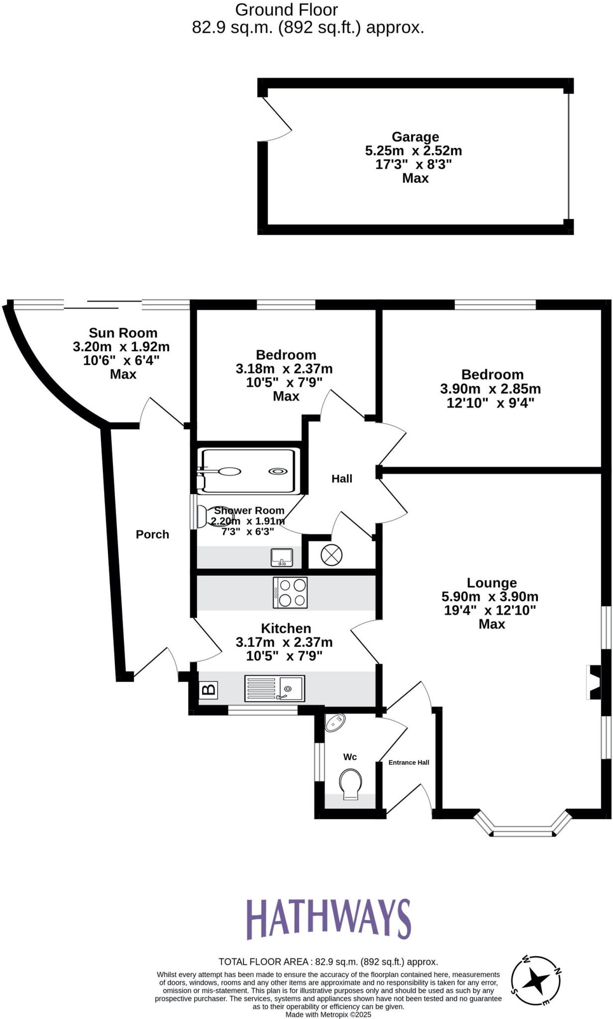
Generous lounge plus sunny sunroom flooding natural light
Modern fitted galley kitchen with some integrated appliances
Detached garage and two driveways — parking for up to three cars
Enclosed rear garden on a decent plot, low-maintenance potential
Chain-free sale and freehold tenure for a quicker purchase
EPC D; double glazing install date unknown — energy improvements likely
Wider area classed as very deprived — check local services and commute
This detached two-bedroom bungalow in Henllys offers straightforward, single-storey living ideal for downsizers or anyone seeking one-level comfort. The layout includes a generous lounge, two double bedrooms, a modern fitted galley kitchen and a sunroom that brings plenty of natural light. The single main bathroom plus separate WC and a walk-in shower keep daily routines simple.
Externally the property is practical: detached garage, two driveways and front and rear parking provide space for three vehicles and storage. An enclosed rear garden offers a private outdoor area for low-maintenance gardening or entertaining. The home sits on a decent plot and is freehold, chain-free and ready for a prompt move.
Practical considerations: the EPC is rated D and some elements — double glazing install date unknown and general cosmetic updating — may need attention. The surrounding area is described as comfortable suburbia but sits within a wider area classified as very deprived; buyers should check local services and travel needs. Council tax is in Band D (buyers should verify).
Overall this is a sensible, adaptable bungalow in a quiet village setting with strong parking and outdoor space. It will suit buyers wanting single-level living with scope to refresh cosmetic finishes and improve energy performance over time.
3 bedroom detached bungalow for sale in Hendre Court, Henllys, Cwmbran, NP44 — £380,000 • 3 bed • 2 bath • 771 ft²
2 bedroom detached bungalow for sale in Lime Grove, The Bryn, Pontllanfraith, NP12 — £295,000 • 2 bed • 1 bath • 792 ft²
2 bedroom semi-detached bungalow for sale in Manor Way, Abersychan, Pontypool, NP4 — £220,000 • 2 bed • 1 bath • 629 ft²
2 bedroom detached bungalow for sale in Modern Bungalow, Drinkwater Rise, Newport, NP20 — £295,000 • 2 bed • 1 bath • 713 ft²
2 bedroom detached bungalow for sale in Open Plan Bungalow, Ridgeway Hill, Newport, NP20 — £324,950 • 2 bed • 2 bath • 1075 ft²
2 bedroom detached bungalow for sale in Park Gardens, Blaenavon, NP4 — £270,000 • 2 bed • 1 bath


















































































































































