Renovated mid-century semi with garden and driveway for two.
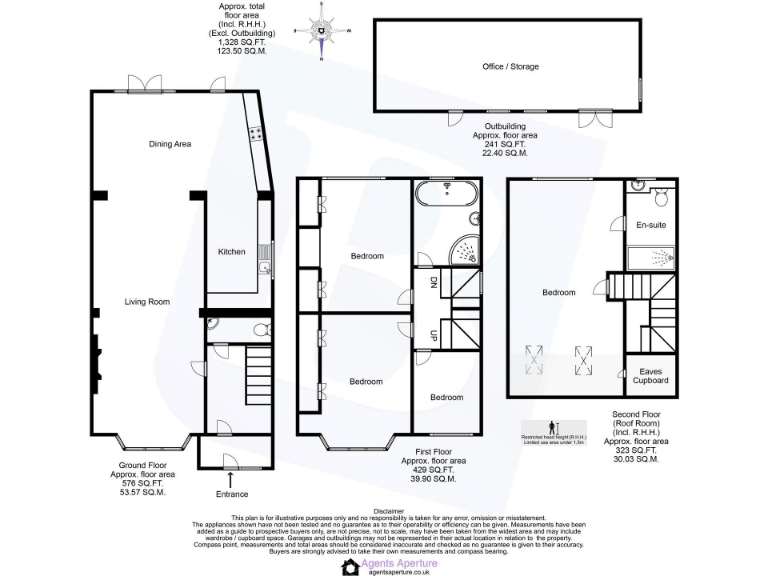
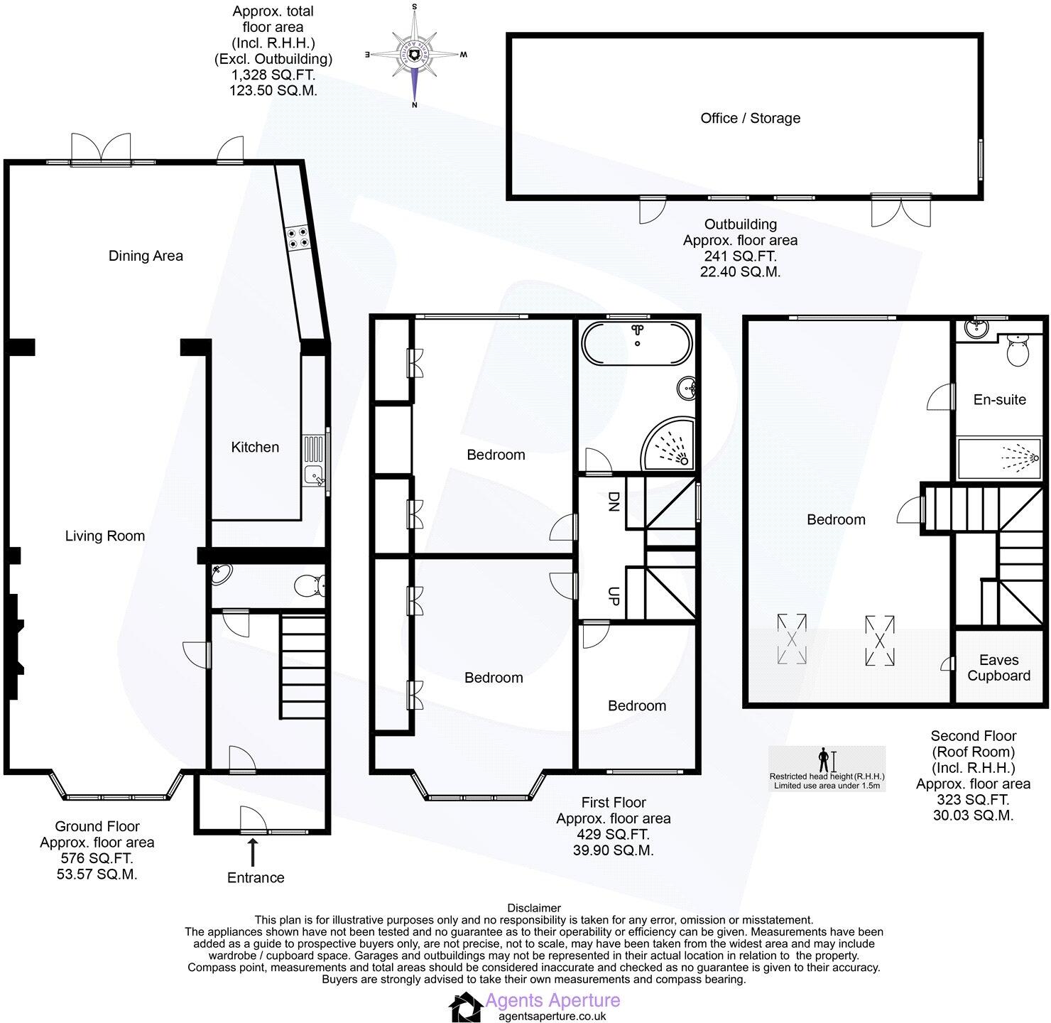
Four bedrooms and two bathrooms, approximately 1,328 sq ft
This newly renovated four-bedroom semi-detached home on Lincoln Avenue offers ready-to-live-in accommodation for growing families. The property combines period character—bay windows and a high-ceiling living room—with contemporary finishes, a modern boiler and double glazing installed since 2002. A driveway for two cars, a decent rear garden and a separate office/outbuilding add everyday practicality and flexible space for home working or hobbies.
Finished with recent improvements including a rear and loft extension, the interior provides comfortable multi-story living across approximately 1,328 sq ft. Broadband speeds are fast and mobile signal is excellent, supporting remote work and streaming. Local schools rated Good–Outstanding are a short distance away, and the neighbourhood records very low crime, making it family-friendly.
Practical points to note: the property is freehold and in Council Tax band D. The original cavity walls were built without insulation (assumed), which may affect energy efficiency and could be an upgrade opportunity. The area’s deprivation level is average and valuation will depend on local comparables, so a viewing and a full set of photographs or floorplans are recommended to confirm room sizes and layout.
Overall, this is a sensible purchase for families seeking a renovated, characterful home with parking, outdoor space and scope for further energy-efficiency improvements. Buyers wanting an immediately habitable, well-connected suburban house should consider a viewing to appreciate the layout and finish in person.
3 bedroom semi-detached house for sale in Park End Road, Romford, RM1 — £600,000 • 3 bed • 2 bath • 1303 ft²
4 bedroom terraced house for sale in Dorset Avenue, Romford, RM1 — £525,000 • 4 bed • 1 bath • 1198 ft²
4 bedroom semi-detached house for sale in The Chase, Romford, RM1 — £675,000 • 4 bed • 1 bath • 1596 ft²
4 bedroom semi-detached house for sale in South Drive, Romford, RM2 — £750,000 • 4 bed • 1 bath • 1619 ft²
5 bedroom semi-detached house for sale in Lilac Gardens, Romford, RM7 — £600,000 • 5 bed • 2 bath • 1368 ft²
4 bedroom semi-detached house for sale in Elms Farm Road, Hornchurch, RM12 — £700,000 • 4 bed • 3 bath • 1630 ft²


































































