G77 5SW - 2 bedroom terraced house for sale in Culzean Crescent, Newt…

View on Property Piper

2 bedroom terraced house for sale in Culzean Crescent, Newton Mearns, G77

Summary - 85, CULZEAN CRESCENT G77 5SW

2 bed 1 bath Terraced

Compact, light-filled two-bedroom villa with garage and landscaped gardens.
Two bright bedrooms over two levels, large mid-century windows
Set at the end of a quiet cul-de-sac with leafy outlooks, this two-bedroom mid-terraced villa offers a compact, well-presented home over two levels. Large mid-century style windows flood the living room and bedrooms with light, while a modern kitchen-diner opens directly to a sunny, landscaped rear garden and patio — ideal for alfresco meals and low-maintenance entertaining.

Practical features include gas central heating, double glazing, a rear garage with off-street parking, and an Energy Efficiency Rating of C. The property is freehold and lies close to excellent local schooling, shops and leisure facilities; the M77 provides straightforward access to the city and surrounding areas.

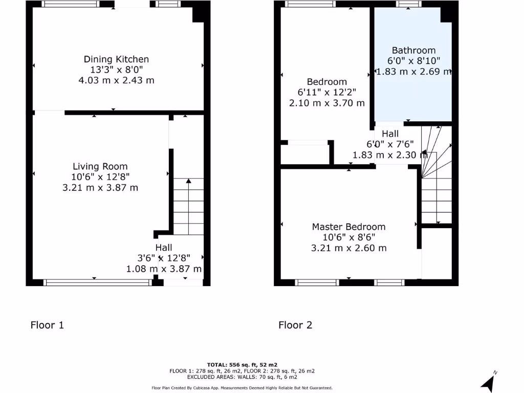
Important considerations: the house is modest in size (approximately 556 sq ft) and will suit first-time buyers, downsizers or a small family rather than those needing larger living spaces. Broadband speeds are slow in the area despite excellent mobile signal. The wider neighbourhood is classified as very deprived, which may influence future resale or rental prospects.

Overall, this tidy, low-maintenance home delivers solid day-to-day convenience, outdoor space and secure parking in a desirable Newton Mearns setting — a practical choice for buyers prioritising location and ease of living over square footage.

Property Details

Brochure Descriptions

Image Descriptions

Floorplan Description

Rooms

Textual Property Features

Target Audience

AI Tags

Detected Visual Features

Nearest Bars And Restaurants

,,,,}

Nearest General Shops

,,}

Nearest Grocery shops

,,}

Nearest Supermarkets

,,}

Nearest Religious buildings

,,}

Nearest Medical buildings

,,,}

Nearest Airports

,}

Nearest Leisure Facilities

,,,,}

Nearest Tourist attractions

,,}

Nearest Train stations

,,,,}

Nearest Bus stations and stops

,,,,}

Nearest Hotels

,,}

Tags

Local Market Stats

AirBnB Data

Similar Properties

Meta

High Res Images

Compatible Images

Low res Images

Thumbnails

Raw Images

High Res Floorplan Images

Compatible Floorplan Images

Low res Floorplan Images

FloorplanImages Thumbnail

Raw Floorplan Images