BN25 1EB - 3 bedroom house for sale in Dane Close, Seaford, BN25

View on Property Piper

3 bedroom house for sale in Dane Close, Seaford, BN25

Summary - 48 DANE CLOSE SEAFORD BN25 1EB

3 bed 2 bath House

**Standout Features:**
- Direct waterfront property with unobstructed sea views
- Off-road parking available
- Modern design and open-plan living spaces
- Three spacious bedrooms, including a master with stunning views
- En suite shower room and family bathroom
- Bi-fold doors leading to a rear garden deck with two ponds
- Chain-free sale

**Summary Description:**
Discover the ultimate seaside retreat with this stunning three-story townhouse, perfectly positioned on the Seaford waterfront. Enjoy breathtaking panoramic views from the master bedroom and spacious first-floor living room that seamlessly transitions through bi-fold doors to a beautifully decked garden. This modern home boasts an open-plan kitchen equipped with contemporary finishes, a dining area ideal for entertaining, and a cozy conservatory perfect for relaxing with family.

With three bedrooms, including a convenient en suite and ample storage throughout, the property provides both comfort and functionality. The exterior features off-street parking and a glass-enclosed raised seating area leading to two charming ponds—perfect for outdoor entertaining or unwinding after a long day. While the property remains in solid condition, there’s potential for personal updates to truly make it your own.

Located just steps away from the beach, this property is an ideal choice for families looking for a serene coastal lifestyle or investors seeking a rental opportunity in a highly desirable area. Don’t miss out on the chance to own this gem with no ongoing chain—schedule a viewing today and experience beachside living at its finest!

Property Details

Brochure Descriptions

Image Descriptions

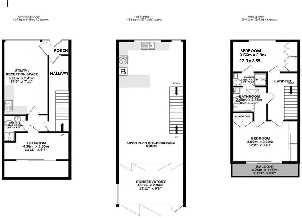
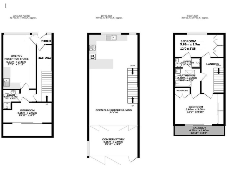
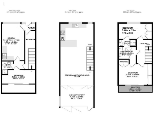
Floorplan Description

Rooms

Textual Property Features

Detected Visual Features

EPC Details

Nearby Schools

Nearest Bars And Restaurants

,,,,}

Nearest General Shops

,,}

Nearest Grocery shops

,,}

Nearest Supermarkets

,,}

Nearest Religious buildings

,,}

Nearest Medical buildings

,,,}

Nearest Leisure Facilities

,,,,}

Nearest Tourist attractions

,,}

Nearest Train stations

,,,,}

Nearest Bus stations and stops

,,,,}

Nearest Hotels

,,}

Tags

Local Market Stats

AirBnB Data

Similar Properties

Meta

High Res Images

Compatible Images

Low res Images

Thumbnails

Raw Images

High Res Floorplan Images

Compatible Floorplan Images

Low res Floorplan Images

FloorplanImages Thumbnail

Raw Floorplan Images