Substantial Grade II building with planning permission and private parking, sold chain free.
Grade II listed former hotel with heritage report available
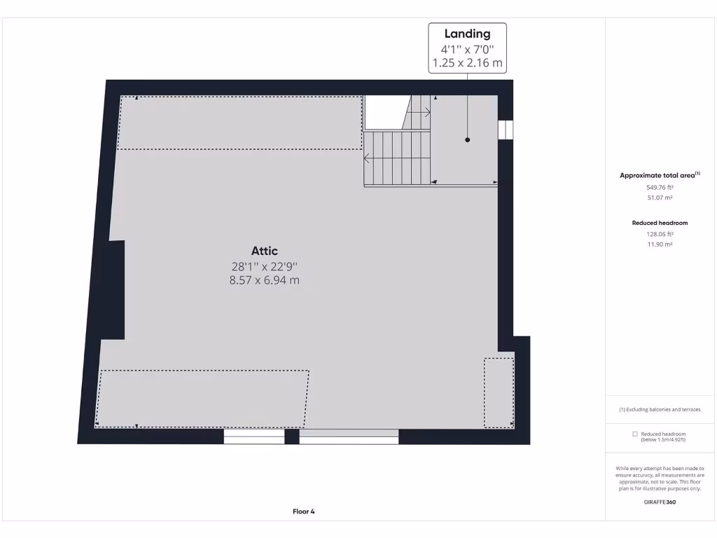
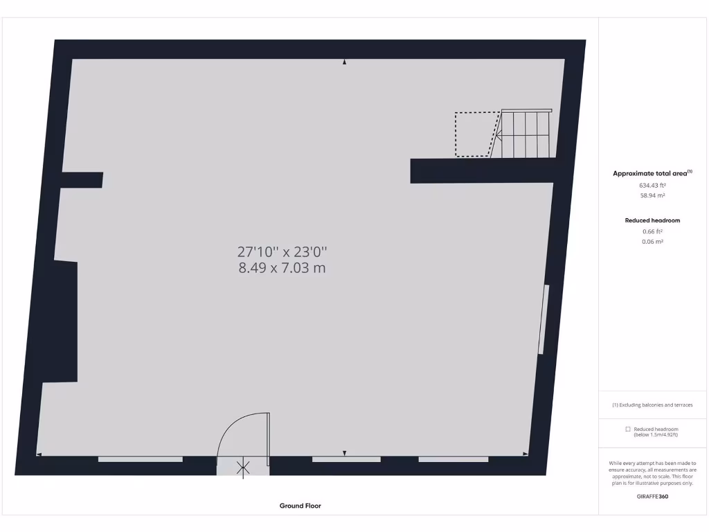
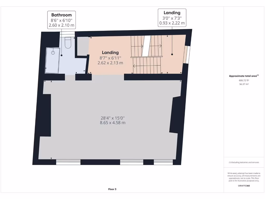
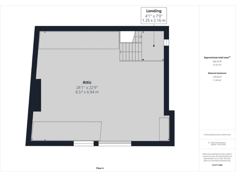
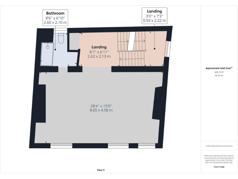
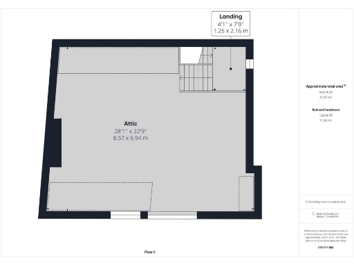
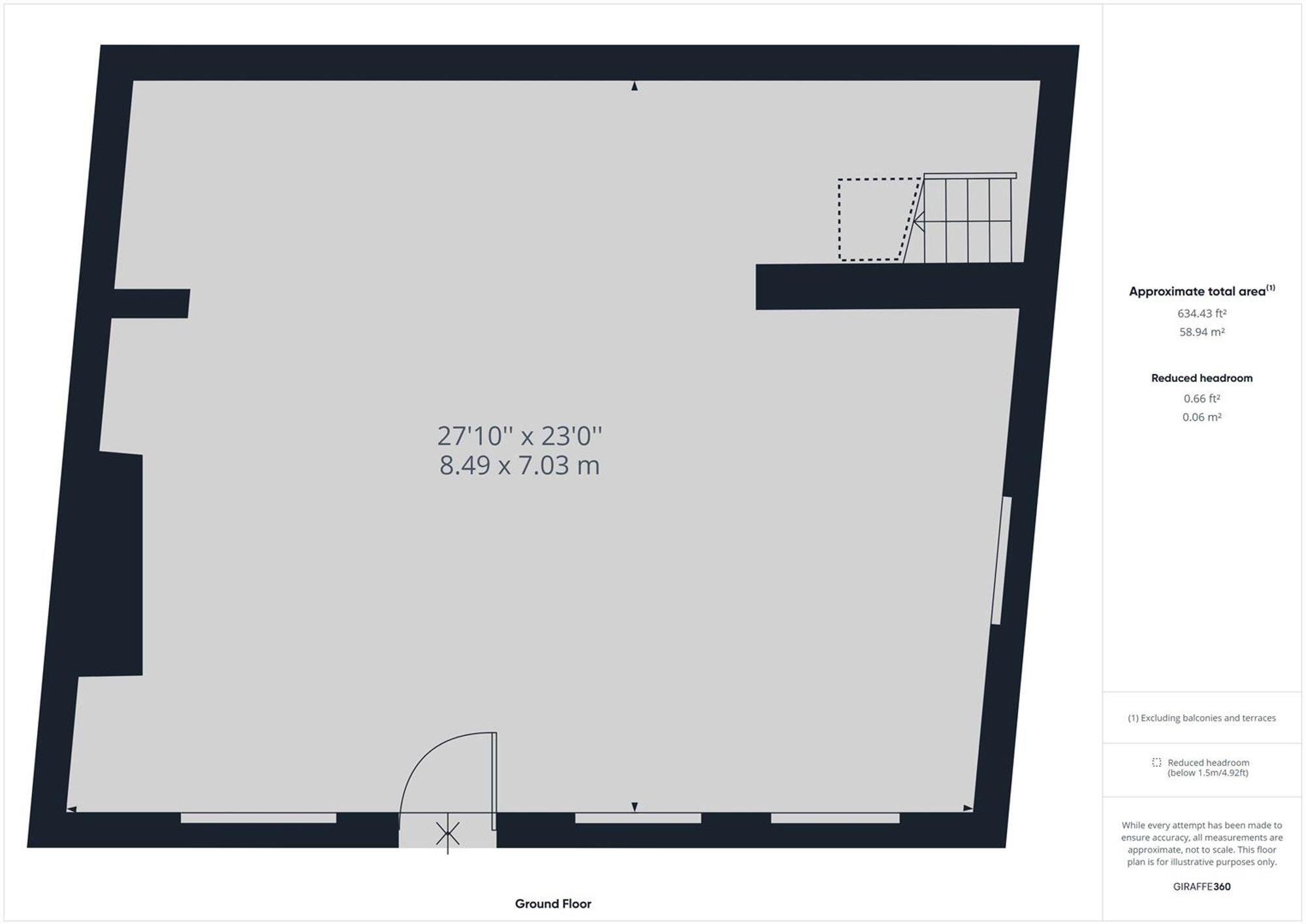
An imposing Grade II listed former hotel at 34 Princess Street, offered with planning permission (Ref: ZF24/00371/LB) to convert into a five‑bedroom, five‑storey townhouse. The property extends to about 3,032 sq ft, benefits from a generous private car park and upper‑floor sea views, and sits in Scarborough’s Old Town close to harbour amenities. Fast broadband and an elevated position are practical pluses for future residential or high‑end holiday use.
The building is mid‑renovation and requires substantial work to complete the conversion. There are temporary acrow props supporting joists and remedial structural works will be needed. Heating is currently electric room heaters, walls are solid brick with no insulation (assumed), and the EPC rating is F. As a Grade II listed building, any works must respect heritage constraints; a heritage statement/report is available.
This is best suited to a cash buyer or experienced investor/developer able to manage listed‑building works and project costs. The site offers clear upside once refurbished — a large central Old Town plot with off‑street parking and planning consent in place — but budget realistically for listed‑building constraints, structural repairs, and modernising heating and insulation. Note: no onward chain and no flood risk, but the area records high crime and significant local deprivation which may affect rental yields and resale timing.
3 bedroom house for sale in Leading Post Street, Scarborough, YO11 — £350,000 • 3 bed • 3 bath • 1831 ft²
7 bedroom terraced house for sale in North Marine Road, Scarborough, YO12 7EY, YO12 — £175,000 • 7 bed • 1 bath • 2015 ft²
3 bedroom house for sale in Longwestgate, Scarborough, YO11 — £210,000 • 3 bed • 1 bath • 1090 ft²
4 bedroom property for sale in Longwestgate, Scarborough, YO11 — £325,000 • 4 bed • 1 bath • 1451 ft²
5 bedroom semi-detached house for sale in Princess Street, Scarborough, North Yorkshire, YO11 — £250,000 • 5 bed • 2 bath • 3244 ft²
4 bedroom terraced house for sale in Princess Street, Scarborough, North Yorkshire, YO11 — £270,000 • 4 bed • 1 bath • 874 ft²


















































