Large consented scheme for 143 apartments close to town and rail.
Freehold site of 0.587 ha (1.45 acres) with two Grade II listed buildings
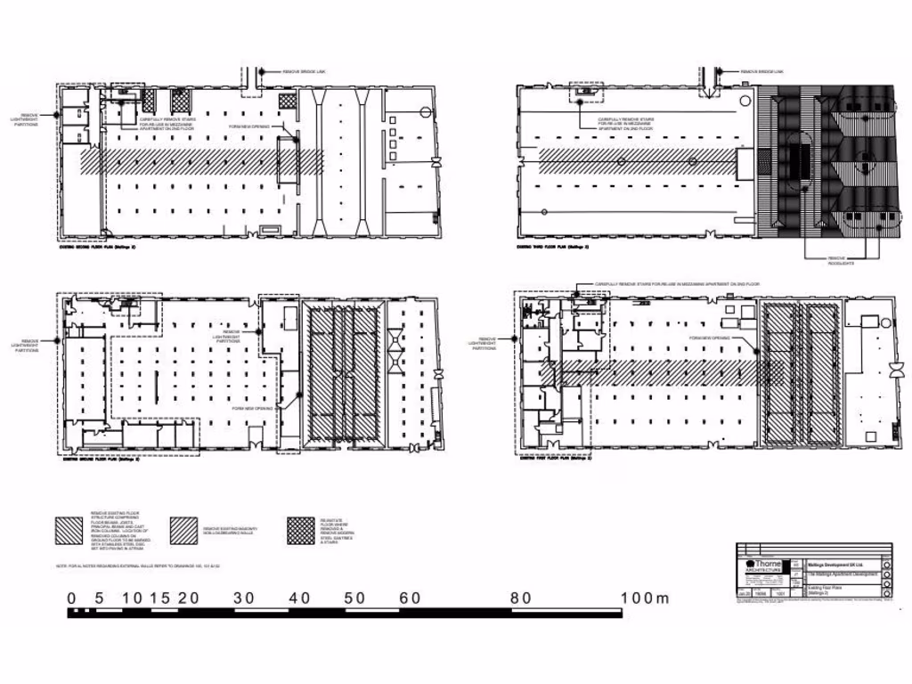
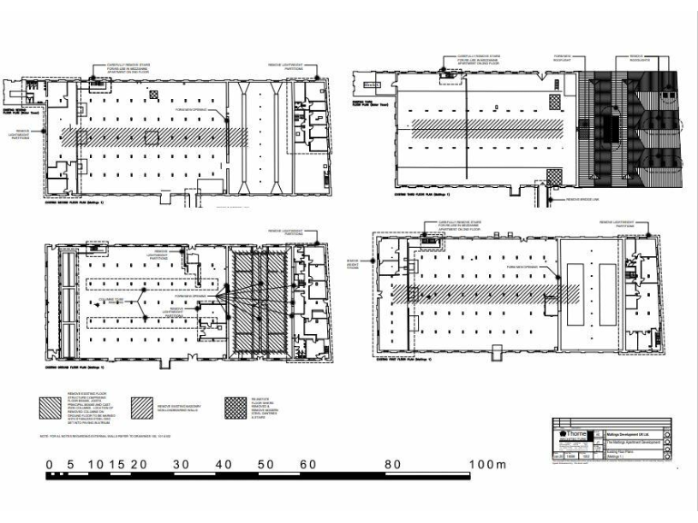
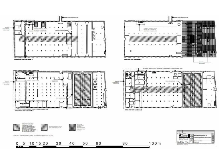
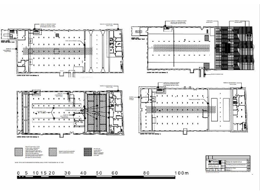
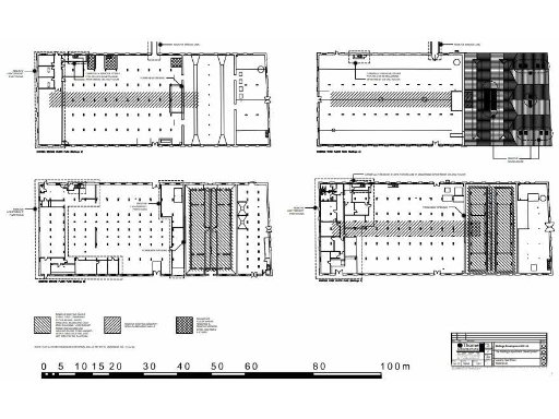
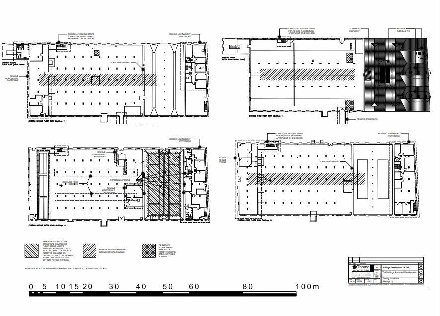
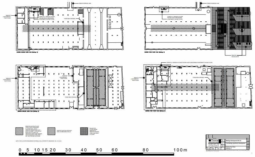
A rare large-scale conversion opportunity in central Burton-on-Trent, The Maltings comprises two Grade II listed former brewery buildings on a 0.587 ha (1.45 acre) site. Planning consent (P/2020/00679) and Listed Building Consent (P/2020/00701) were granted in October 2021 to convert the buildings into 143 apartments with 103 parking spaces and provision for electric vehicle charging points.
The buildings date from the early 1950s and retain industrial character: high ceilings, large windows and robust red brick construction. The consented scheme creates apartments around two central atria to maximise natural light and includes reinstatement works, new openings, roof renewal and the insertion of staircases and lifts to facilitate modern residential use.
Buyers should note material constraints: the site is Grade II listed, which will restrict alterations and require specialist conservation works. The buildings are currently in a derelict condition and will need substantial refurbishment and compliance works to meet modern standards. The immediate area has higher-than-average crime levels and the surrounding neighbourhood is described as a transitional Eastern European/primary sector workers area, which may affect lettability and resale values in certain segments.
This is a freehold sale by private treaty, offered as a development proposition for investors or hybrid residential developers with experience of listed-building conversions. Good transport links, proximity to the town centre and a 21-minute rail connection to Birmingham New Street support both PRS and for-sale outcomes, provided buyers factor in conservation constraints, build cost and local market dynamics.
Warehouse for sale in Former Molson Coors Brewery, Plot G Station Street, Burton-On-Trent, Staffordshire, DE14 1BG, DE14 — £250,000 • 1 bed • 1 bath
Warehouse for sale in Former Molson Coors Brewery, Plot A & B Station Street, Burton-On-Trent, Staffordshire, DE14 1BG, DE14 — £750,000 • 1 bed • 1 bath
Warehouse for sale in Former Molson Coors Brewery, Station Street, Burton-On-Trent, Staffordshire, DE14 1BG, DE14 — POA • 1 bed • 1 bath
Warehouse for sale in Former Molson Coors Brewery, Plot F Station Street, Burton-On-Trent, Staffordshire, DE14 1BG, DE14 — £1,200,000 • 1 bed • 1 bath
Warehouse for sale in Former Molson Coors Brewery, Plot D Station Street, Burton-On-Trent, Staffordshire, DE14 1BG, DE14 — £1,590,000 • 1 bed • 1 bath
Commercial property for sale in 107 Station Street, Burton-on-trent, DE14 — £9,500,000 • 1 bed • 1 bath • 344 ft²














































































