Renovated three-bedroom near high street and station with driveway and extension potential.
Three bedrooms, one modern bathroom
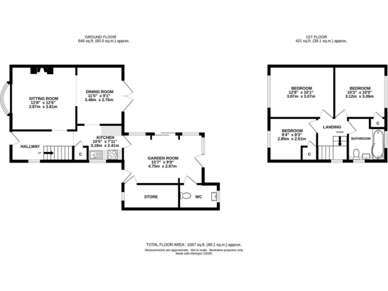
A well-presented three-bedroom semi-detached house set about a mile from Brentwood High Street and station. Recently renovated throughout, the property combines contemporary fixtures with period character features such as a bay window and a traditional fireplace. The layout includes a spacious living room, an efficient but narrow kitchen leading to a sizeable dining/garden room, and a single modern bathroom.
Practical family benefits include off-street parking, a decent-sized private garden, outbuildings for storage and double glazing installed after 2002. Mains gas central heating via boiler and radiators provides reliable warmth. The plot offers scope to extend, subject to planning permission, giving clear potential to increase living space for a growing household.
Location suits families: several well-regarded primary and secondary schools are nearby and local shops, cafés and transport links are within easy reach. Broadband speeds and mobile signal are strong, supporting home working and family connectivity.
Notable limitations are factual and important: there is only one bathroom and the kitchen is described as narrow, which may restrict larger family households. Local crime and area deprivation are average; prospective buyers should consider this alongside the property’s many strengths.
3 bedroom semi-detached house for sale in Orchard Avenue, Brentwood, Essex, CM13 — £550,000 • 3 bed • 2 bath • 1085 ft²
3 bedroom semi-detached house for sale in Crescent Road, Warley, Brentwood, Essex, CM14 — £550,000 • 3 bed • 2 bath • 1023 ft²
3 bedroom semi-detached house for sale in St. Kildas Road, Brentwood, Essex, CM15 — £450,000 • 3 bed • 1 bath • 837 ft²
3 bedroom semi-detached house for sale in Crescent Road, Warley, CM14 — £600,000 • 3 bed • 1 bath • 936 ft²
3 bedroom semi-detached house for sale in Wingrave Crescent, Brentwood, CM14 — £475,000 • 3 bed • 2 bath • 1051 ft²
3 bedroom house for sale in St. Stephens Crescent, Brentwood, Essex, CM13 — £455,000 • 3 bed • 2 bath • 1011 ft²










































































