LE9 7DA - 2 bedroom end of terrace house for sale in Church Street, E…

View on Property Piper

2 bedroom end of terrace house for sale in Church Street, Earl Shilton, Leicester, LE9

Summary - 65 CHURCH STREET EARL SHILTON LEICESTER LE9 7DA

2 bed 1 bath End of Terrace

**Standout Features:**
- Two-bedroom end terrace home
- Characterful features with classic Victorian design
- Beautiful countryside views at the rear and charming church view at the front
- Cozy living spaces, including a lounge with bay window and log burner
- Requires cosmetic work and garden attention
- Sought-after location with low council tax band (A)

Nestled on the edge of Earl Shilton, this charming two-bedroom end terrace home radiates warmth and character. With stunning views of the nearby church and picturesque countryside in the rear, this property is perfect for nature lovers and anyone seeking tranquility. Inside, the inviting atmosphere features a cozy lounge with a bay window and a striking log burner in the dining room, ideal for family gatherings. The well-appointed kitchen offers dual aspect glazing, filling the space with natural light and views while you cook. Both bedrooms are comfortable, providing ample space for family or guests.

While the property requires some TLC, including cosmetic updates and garden maintenance, it presents an excellent opportunity to create a unique living space tailored to your preferences. Its freehold status and appealing low council tax ensure affordability. Don't miss this opportunity to invest in a delightful home in a sought-after location — schedule a viewing today to envision your future in this enchanting property!

Property Details

Brochure Descriptions

Image Descriptions

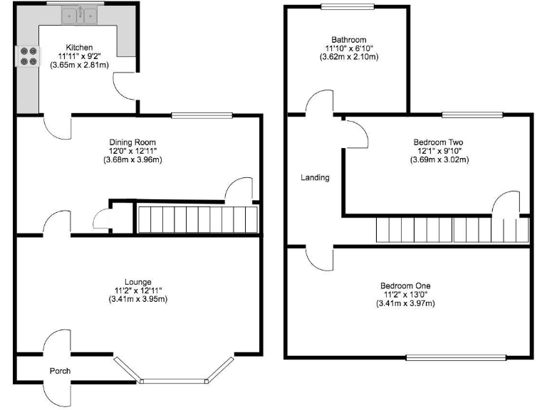
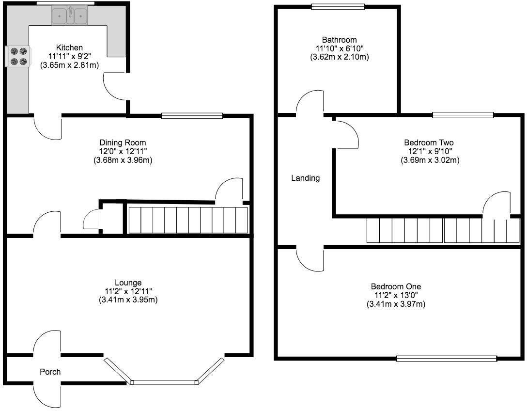
Rooms

Textual Property Features

Detected Visual Features

Nearby Schools

Nearest Bars And Restaurants

,,,,}

Nearest General Shops

,,}

Nearest Grocery shops

,,}

Nearest Supermarkets

,,}

Nearest Religious buildings

,,}

Nearest Medical buildings

,,,}

Nearest Airports

,}

Nearest Leisure Facilities

,,,,}

Nearest Tourist attractions

,,}

Nearest Train stations

,,,,}

Nearest Bus stations and stops

,,,,}

Nearest Hotels

,,}

Tags

Local Market Stats

Similar Properties

Meta

High Res Images

Compatible Images

Low res Images

Thumbnails

Raw Images

High Res Floorplan Images

Compatible Floorplan Images

Low res Floorplan Images

FloorplanImages Thumbnail

Raw Floorplan Images