Three-bedroom family home with large garden and off-street parking.
Three good-sized bedrooms and two reception rooms
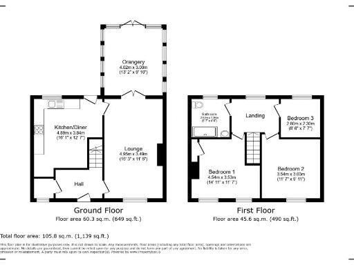
This double-fronted mid-terraced house on Victoria Road East provides roomy, well-presented living across multiple reception rooms — an easy-fit family home with period character. The property has three good-sized bedrooms, a spacious lounge, a contemporary fitted kitchen and a modern family bathroom. An orangery adds light and extra living space, while the large rear garden is private and family-friendly.
Practical benefits include off-street parking, mains gas central heating and double glazing. The house is solid-brick, built around 1930–1949, and sits near primary schools (two rated Outstanding) and local amenities — useful for families with children and commuting workers.
Be candid about local context: the area records higher crime and significant deprivation compared with regional averages. The property also likely lacks wall insulation (solid brick as-built) and the glazing installation date is unknown — further energy improvements may be needed to reduce running costs.
Overall this is a spacious, ready-to-live-in home with immediate family appeal and scope for targeted upgrades (insulation, energy efficiency) to enhance comfort and long-term value.
4 bedroom terraced house for sale in Victoria Road West, Hebburn, Tyne and Wear, NE31 1UZ, NE31 — £185,000 • 4 bed • 1 bath • 1723 ft²
3 bedroom terraced house for sale in Morecambe Parade, Lukes Lane, Hebburn, Tyne and Wear, NE31 2AH, NE31 — £120,000 • 3 bed • 1 bath • 915 ft²
3 bedroom terraced house for sale in Delaval Road, Whitley Bay, Tyne and Wear, NE26 2NG, NE26 — £410,000 • 3 bed • 1 bath
3 bedroom terraced house for sale in Park Road, Wallsend, NE28 — £200,000 • 3 bed • 1 bath • 1244 ft²
3 bedroom end of terrace house for sale in Skegness Parade, Hebburn, NE31 — £115,000 • 3 bed • 1 bath
3 bedroom terraced house for sale in Park Avenue, Wallsend , Wallsend, Tyne and Wear, NE28 8DE, NE28 — £240,000 • 3 bed • 1 bath • 1324 ft²


































































































































