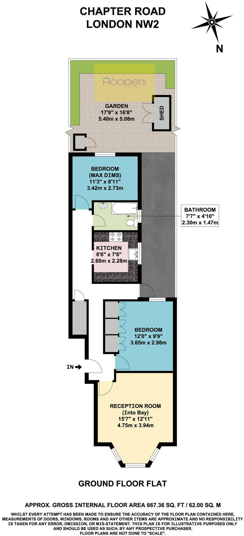
Two-bedroom garden flat near Willesden Green station — ready to move in.
South-facing private rear garden, shed included
A bright, characterful ground-floor flat with its own south-facing garden, ideal for first-time buyers seeking outdoor space close to transport. The living room’s bay window and high ceilings retain period charm while the fitted kitchen and contemporary bathroom provide ready-to-live-in convenience. At about 667 sq ft the layout feels comfortable for couples or a small family.
Practical comforts include gas central heating, double glazing and a long lease of approximately 103 years. Willesden Green (Zone 2 Jubilee Line) and local shops, cafés and bus routes are within roughly a quarter-mile, making commutes and everyday life straightforward.
Buyers should note the building is a solid-brick Victorian terrace (constructed c.1900–1929) with no known internal wall insulation, which may mean higher heating costs unless insulated. The bathroom is compact, and the property sits in a more deprived local area profile — factors to weigh alongside the affordable council tax and good local schools nearby.
Overall this is a well-presented starter home that balances period character, private outdoor space and strong transport links. It will suit buyers wanting immediate occupation with modest improvement potential, particularly around insulation and aesthetic updating.
1 bedroom flat for sale in Chapter Road, Cricklewood, NW2 — £360,000 • 1 bed • 1 bath • 498 ft²
1 bedroom ground floor flat for sale in Chapter Road, London, NW2 — £360,000 • 1 bed • 1 bath • 501 ft²
1 bedroom apartment for sale in Chapter Road, London, NW2 — £335,000 • 1 bed • 1 bath • 463 ft²
2 bedroom flat for sale in Maybury Gardens, London, NW10 — £550,000 • 2 bed • 1 bath • 593 ft²
2 bedroom flat for sale in Villiers Road, London, NW2 — £525,000 • 2 bed • 1 bath • 731 ft²
2 bedroom flat for sale in Harlesden Road, London, NW10 — £500,000 • 2 bed • 1 bath • 646 ft²






































