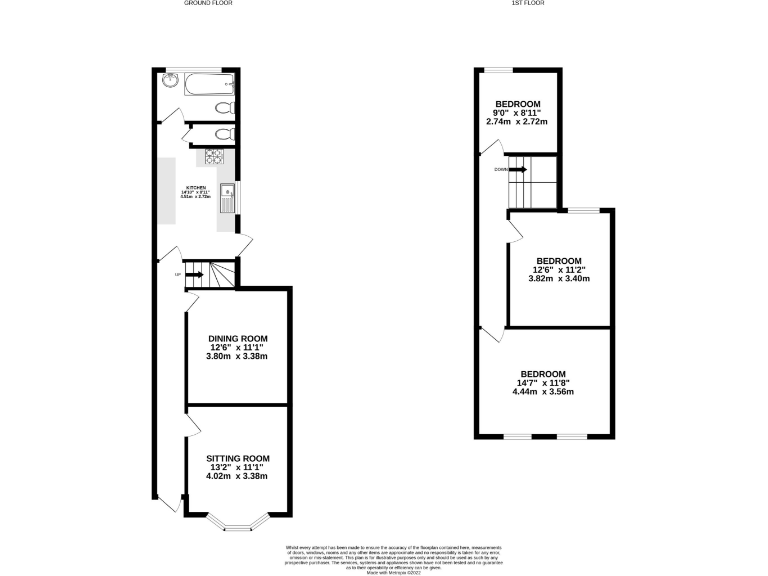
**Standout Features:**
- Three spacious double bedrooms
- Large lounge and separate dining room
- Recently refitted bathroom
- Enclosed rear garden offering privacy
- Chain-free sale, allowing for quick transaction
- Period features throughout enhancing character
**Potential Concerns:**
- Average property size for terraced housing
- Garden may require some maintenance
- Property conditions suggest possible need for additional updates
Nestled in a sought-after residential area of Aldershot, this charming Edwardian terraced house presents an inviting opportunity for families and first-time buyers. Spanning two floors, the property features a welcoming entrance hall that leads to generous living spaces, including a large lounge and a separate dining room designed for comfortable family gatherings. With three double bedrooms on the upper floor, there's ample space for everyone.
The modern, recently refitted bathroom adds to the appeal, while the enclosed rear garden provides a private outdoor retreat perfect for children or pets. Although the property showcases period charm, its moderately sized plot and average garden might require some upkeep. Located within close proximity to local amenities, schools with good Ofsted ratings, and excellent transport links, this home promises not just comfort but also a vibrant community.
With no onward chain, this property is ready for immediate occupancy—don't miss out on this attractive urban abode that merges traditional elegance with modern living!
2 bedroom terraced house for sale in Ash Road, Aldershot, Hampshire, GU12 — £280,000 • 2 bed • 1 bath • 564 ft²
3 bedroom end of terrace house for sale in St. Michaels Road, Aldershot, Hampshire, GU12 — £460,000 • 3 bed • 2 bath • 1435 ft²
3 bedroom terraced house for sale in Canning Road, Aldershot, Hampshire, GU12 — £400,000 • 3 bed • 2 bath • 1509 ft²
3 bedroom terraced house for sale in Ash Road, Aldershot, Hampshire, GU12 — £370,000 • 3 bed • 1 bath • 921 ft²
3 bedroom semi-detached house for sale in Windmill Road, Aldershot, Hampshire, GU12 — £335,000 • 3 bed • 1 bath • 930 ft²
3 bedroom semi-detached house for sale in Sandford Road, Aldershot, Hampshire, GU11 — £425,000 • 3 bed • 1 bath • 852 ft²


























































