Large Victorian one-bed with conservatory and private garden near East Putney.
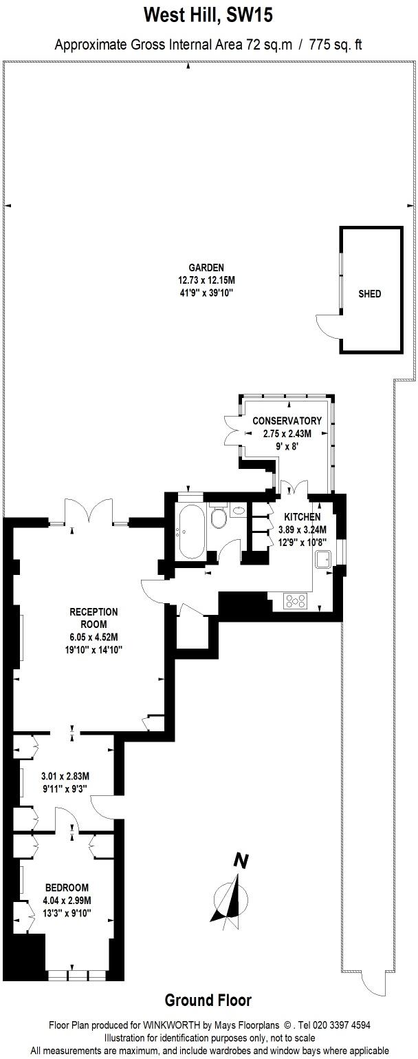
Large 775 sq ft one-bedroom apartment
Bright, spacious and characterful, this large one-bedroom apartment offers 775 sq ft of flexible living in desirable West Hill. Period features such as high ceilings, a traditional fireplace and large sash-style windows give the principal rooms a generous, airy feel while a conservatory leads directly onto a private garden and shed — a rare outdoor space for a central location.
Accommodation is arranged in a traditional layout with a separate kitchen, well-appointed bathroom and a generously sized bedroom that benefits from natural light. The property sits within a Victorian mansion-style building, reflecting the character of the area and offering an attractive long-term home for a first-time buyer or couple seeking a low-maintenance London base with private outside space.
Practical advantages include share of freehold tenure, excellent mobile signal and fast broadband speeds, plus walking access to East Putney and Putney stations and nearby shops, cafés and green spaces. Note: council tax band is not provided and the area records average crime and deprivation levels — buyers should verify running costs and local services as part of their due diligence.
Overall this apartment combines period charm, generous internal space and a private garden — a compelling package for those prioritising character and outdoor space close to central London transport links.
1 bedroom apartment for sale in West Hill, London, SW15 — £350,000 • 1 bed • 1 bath • 502 ft²
1 bedroom apartment for sale in West Hill, London, SW18 — £300,000 • 1 bed • 1 bath • 587 ft²
1 bedroom flat for sale in West Hill, London, SW15 — £500,000 • 1 bed • 1 bath • 1104 ft²
1 bedroom flat for sale in West Hill, Putney, SW15 — £350,000 • 1 bed • 1 bath • 376 ft²
3 bedroom flat for sale in West Hill, Putney, SW15 — £569,000 • 3 bed • 2 bath • 1200 ft²
1 bedroom flat for sale in Carlton Drive, London, SW15 — £475,000 • 1 bed • 1 bath • 708 ft²


































