Secluded rural home close to Yarm, perfect for family living and outdoor space.
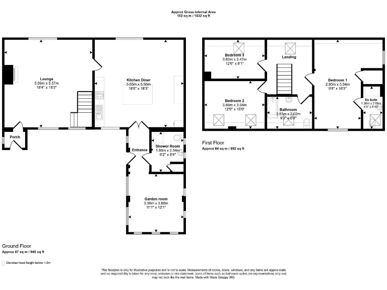
1,632 sq ft converted barn-style home with high ceilings and exposed brick
Set in a peaceful hamlet between Stokesley and Hutton Rudby, The Gables is a spacious converted barn offering 1,632 sq ft of characterful living. The ground floor centres on a large kitchen-diner with a granite island, a light-filled garden room and a cosy lounge with a log-burning stove — ideal for family life or entertaining. Outside there are private courtyard and lawned gardens, a car port and additional parking.
Upstairs the principal bedroom has an en-suite, joined by two further bedrooms and a family bathroom. High ceilings, exposed brick and skylights preserve much of the property’s period charm from its Victorian origins while the 1995 conversion provides a practical, well-laid-out home for everyday living.
Buyers should note some material points: the property is in an area of high flood risk and the main heating is electric room heaters rather than a central system. The stone walls are assumed to be without insulation, so buyers may wish to factor potential improvement costs for insulation or a heating upgrade. Council Tax is band E (above average).
This home suits buyers seeking a private rural setting with character and generous outdoor space — especially families or those wanting a countryside retreat within easy reach of local schools and nearby towns. Fast broadband and very low local crime add practical benefits for modern living, while the plot and layout offer scope to personalise and improve energy performance over time.
3 bedroom barn conversion for sale in Campion Lane, Hutton Rudby, Yarm, TS15 — £650,000 • 3 bed • 2 bath • 1539 ft²
3 bedroom bungalow for sale in Hemble Hill Farm, Middlesbrough Road, Guisborough, North Yorkshire, TS14 — £485,000 • 3 bed • 2 bath • 2604 ft²
3 bedroom barn conversion for sale in Campion Lane, Hutton Rudby, Yarm, TS15 0DX, TS15 — £650,000 • 3 bed • 2 bath
5 bedroom barn conversion for sale in Town End Farm, Elton, Stockton On Tees, TS21 — £1,100,000 • 5 bed • 5 bath • 3917 ft²
3 bedroom barn conversion for sale in Gatherley Road, Brompton-on-Swale, DL10 — £335,000 • 3 bed • 2 bath • 1259 ft²
4 bedroom detached house for sale in Woodlands, Station Road, TS13 — £450,000 • 4 bed • 1 bath • 2254 ft²


























































































