Ideal rental opportunity near universities and transport links.
Over 1,044 sq ft internal space, unusually large for city apartments
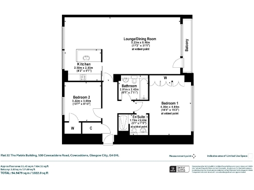
Open-plan living/dining/kitchen over 31 ft with floor-to-ceiling windows
Enclosed balcony over 17 ft, accessed from main living area
Two double bedrooms; main bedroom with en suite and built-in wardrobes
Newly renovated and presented in walk-in condition with oak flooring
Secure gated courtyard, lift access and weekday concierge service
Freehold tenure, EPC B, no flood risk, excellent mobile and fast broadband
Local area classified very deprived; council tax Band F is expensive
Set over 1,044 sq ft, this newly renovated two-bedroom apartment sits on the 2nd-floor east elevation of The Matrix Building. The open-plan living/dining/kitchen stretches over 31 ft, features floor-to-ceiling windows and patio doors to an enclosed balcony of over 17 ft — a strong draw for tenants seeking light and outside space. The main bedroom includes built-in wardrobes and an en suite; a second double and a main bathroom complete the layout. The apartment is presented in walk-in condition with engineered oak flooring and integrated kitchen appliances.
The development offers practical security and convenience: gated courtyard entry, a weekday concierge, secure communal access, lift and stair access. Transport links are excellent with nearby train and subway stations, airport bus links and fast road access to the M8. Proximity to Strathclyde and Caledonian Universities, conservatoires and the city’s cultural quarter supports steady rental demand from students and young professionals.
Notable positives include freehold tenure, an EPC B rating, no flood risk, and strong digital connectivity (excellent mobile and fast broadband). The property was built in 2004 and benefits from modern finishes following the recent refurbishment, so minimal immediate maintenance is expected inside the flat.
Buyers should note material negatives plainly: the local area is classified as very deprived, which can affect long-term capital values and the tenant mix; council tax is band F and described as expensive; ceiling heights are low-to-medium, which may feel less airy compared with newer high-ceiling apartments. These factors are balanced by the central location, on-site security and clear rental appeal for students and commuters.
2 bedroom flat for sale in Flat 1, 110 Cowcaddens Road, Glasgow, Glasgow City, G4 — £205,000 • 2 bed • 2 bath • 1042 ft²
3 bedroom flat for sale in Flat 36 The Matrix Building, 112 Cowcaddens Road, Cowcaddens, G4 0HL, G4 — £269,000 • 3 bed • 2 bath • 1109 ft²
2 bedroom flat for sale in Great Dovehill, Glasgow, Glasgow City, G1 — £220,000 • 2 bed • 2 bath • 742 ft²
2 bedroom flat for sale in 1/8, 145 Albion Street, Glasgow, G1 1QS, G1 — £199,999 • 2 bed • 1 bath • 936 ft²
2 bedroom flat for sale in College Street, Glasgow, G1 — £245,000 • 2 bed • 2 bath • 985 ft²
2 bedroom flat for sale in Morrison Street, Kinning Park, Glasgow, G5 — £155,000 • 2 bed • 1 bath • 581 ft²






















































































































