Single‑storey home with large private garden and annexe for flexible living.
Single‑storey detached bungalow with annexe for independent living
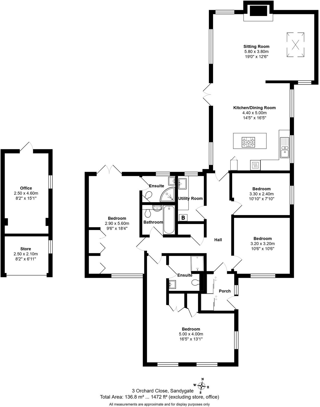
This detached single‑storey home offers flexible living across one level with a self-contained annexe — ideal for multi‑generational families or those wanting a separate guest/teen space. At the heart of the property is a stunning open‑plan kitchen/dining/lounge with oak worktops, island hob, integrated appliances and French doors opening onto the garden. Four bedrooms include two en‑suites; the principal bedroom benefits from floor‑to‑ceiling wardrobes and direct garden access.
Practical everyday living is well covered: a separate utility room, a recently installed gas boiler (circa two years old), and a garage converted to an office/games room while still retaining storage to the front. The plot is a standout feature — a large, mature and private garden with patio, covered barbecue area and built‑in pizza oven, plus ample driveway parking for multiple vehicles and space for a hot tub.
Constructed in the mid‑20th century, the bungalow combines period character with modern upgrades, but there are a few things to note. The double glazing was installed before 2002 and may not match current efficiency standards. The garage has been adapted for living use (useful now but may limit traditional garaging unless converted back). Overall the layout and plot offer strong scope for extension, landscaping or further modernisation to add value in this very affluent, low‑crime neighbourhood with fast broadband and excellent mobile signal.
4 bedroom semi-detached bungalow for sale in Higher Woodway Road, Teignmouth, TQ14 — £475,000 • 4 bed • 3 bath • 2143 ft²
4 bedroom detached bungalow for sale in Moor Lane, Torquay, TQ2 — £500,000 • 4 bed • 2 bath • 1688 ft²
4 bedroom detached bungalow for sale in St. Lukes Road, Newton Abbot, TQ12 — £485,000 • 4 bed • 2 bath • 1722 ft²
3 bedroom bungalow for sale in Bishops Avenue, Bishopsteignton, Teignmouth, Devon, TQ14 — £395,000 • 3 bed • 2 bath • 1178 ft²
2 bedroom detached bungalow for sale in Lyndale Road, Kingsteignton, TQ12 — £330,000 • 2 bed • 1 bath • 924 ft²
3 bedroom detached bungalow for sale in Whilborough Road, Newton Abbot, TQ12 5DY, TQ12 — £895,000 • 3 bed • 2 bath • 2344 ft²


































































































































































