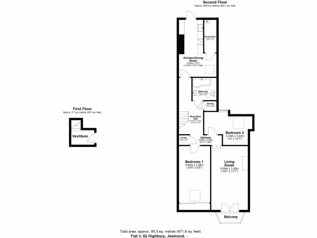
**Standout Features:**
- Two-bedroom top-floor apartment with dual-pitched ceilings and Victorian architecture.
- Private west-facing balcony offering breathtaking garden and nature views.
- Recently redecorated with a newly installed roof.
- Spacious kitchen/diner and large living room with period features.
- Off-street parking available and secure communal entrance.
**Concerns:**
- Council tax band B, but still relatively affordable.
- Energy Performance Certificate rating of D may need future attention.
Nestled in the vibrant Jesmond neighborhood, this elegantly presented two-bedroom top-floor apartment offers a perfect blend of modern comfort and period charm. Boasting high ceilings and large windows, the light-filled living spaces seamlessly connect with a delightful private balcony that provides stunning views of the surrounding greenery. The generous kitchen/diner is well-equipped and ideal for entertaining, while the principal bedroom features a unique mezzanine level for extra storage or workspace. Located just a stone’s throw from Newcastle City Centre and surrounded by excellent local amenities, independent shops, and renowned schools, this property is perfectly suited for families, professionals, or savvy investors looking for rental potential.
While the property is in great condition, potential buyers should note the average energy performance rating and manageable council tax band. With 951 years remaining on the lease and a share of the freehold, this exceptional apartment represents a fantastic opportunity to embrace a cosmopolitan lifestyle in a highly sought-after area. Act quickly—this charming home won't be available for long!
2 bedroom flat for sale in Tankerville Terrace, Newcastle Upon Tyne, NE2 — £210,000 • 2 bed • 2 bath • 711 ft²
2 bedroom flat for sale in Blythswood South, Osborne Road, Jesmond, NE2 — £225,000 • 2 bed • 1 bath • 862 ft²
2 bedroom apartment for sale in Osborne Road, Jesmond, Newcastle Upon Tyne, NE2 — £230,000 • 2 bed • 2 bath • 897 ft²
2 bedroom flat for sale in Rosebery Crescent, Jesmond, Newcastle upon Tyne, NE2 — £160,000 • 2 bed • 1 bath • 577 ft²
1 bedroom flat for sale in Granville Gardens, Jesmond Vale, Newcastle Upon Tyne, NE2 — £160,000 • 1 bed • 1 bath • 492 ft²
2 bedroom maisonette for sale in Eslington Terrace, Jesmond, Newcastle upon Tyne, NE2 — £385,000 • 2 bed • 2 bath • 1404 ft²


















































