**Standout Features:**
- Charming Grade II listed cottage with part-thatched roof
- Set on approximately 2 acres, including formal gardens and paddock
- Beautifully renovated with character features and modern conveniences
- Three spacious bedrooms, two bathrooms, and a cozy snug/home office
- Large garage and additional accommodation in a shepherd’s hut
- Located in the idyllic New Forest village of Minstead
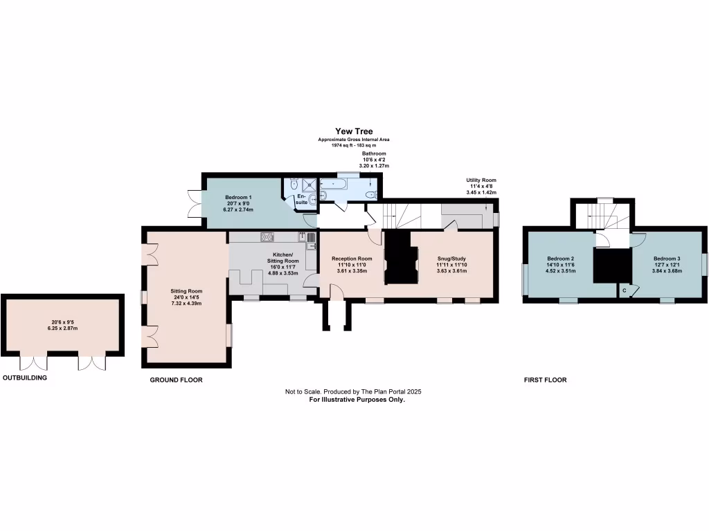
Tucked away in the serene surroundings of the New Forest, Yew Tree offers a unique blend of historical charm and modern living. This enchanting 17th-century cottage, re-thatched in 2018 and thoughtfully renovated, boasts a picturesque facade, a welcoming entrance porch, and an expansive internal layout perfect for families seeking comfort and character. The heart of the home is a brightly-lit sitting room with French doors opening to the lush gardens, while the well-equipped kitchen features high-end appliances and plenty of storage.
Outside, the sizable grounds present a tranquil haven filled with vibrant plants, ideal for those who cherish nature. With approximately one acre of beautifully designed gardens and an adjoining paddock, this property is perfect for equestrian enthusiasts or anyone looking to embrace a rural lifestyle. The bonus shepherd’s hut offers additional flexible space, whether for guests or a cozy office. While the property does carry a Grade II listing, which may require some future considerations for renovations, its combination of historical allure and modern amenities makes it a rare offering in today’s market. Don’t miss the chance to own this exclusive piece of countryside living—explore the possibilities Yew Tree presents for your family.
4 bedroom detached house for sale in Minstead, Lyndhurst, SO43 — £995,000 • 4 bed • 2 bath • 2109 ft²
5 bedroom detached house for sale in Minstead, Lyndhurst, SO43 — £1,650,000 • 5 bed • 3 bath • 2833 ft²
3 bedroom character property for sale in Fritham, Lyndhurst, SO43 — £1,500,000 • 3 bed • 2 bath • 2756 ft²
2 bedroom terraced house for sale in Manchester Road, Sway, Lymington, Hampshire, SO41 — £475,000 • 2 bed • 1 bath
6 bedroom detached house for sale in Main Road, East Boldre, Brockenhurst, SO42 — £2,995,000 • 6 bed • 6 bath • 5370 ft²
5 bedroom detached house for sale in Lymington Road, East End, Lymington, SO41 — £1,045,000 • 5 bed • 2 bath • 2460 ft²






































































































































