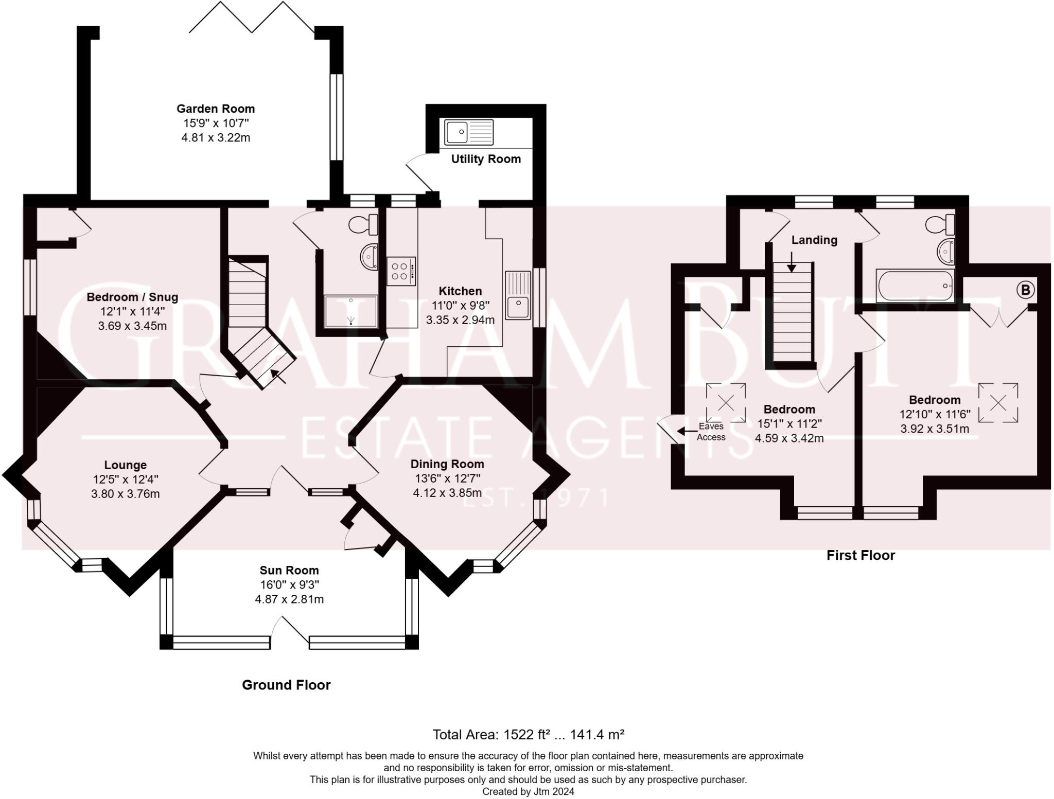
**Standout Features:**
- Elegant three-bedroom chalet-style home
- Detached with over 1500 sq. ft. of living space
- Beautifully landscaped garden with serene views
- Versatile downstairs bedroom/snug
- Spacious modern kitchen and utility area
- Garage and carriage driveway for ample parking
- Located on a sought-after private road
- Low crime rate and affluent neighborhood
**Concerns:**
- Broadband speeds are very slow
- Higher council tax rates
This beautifully presented three-bedroom chalet-style home is a must-see for families or first-time buyers looking for comfort in a tranquil setting. Offering over 1500 sq. ft. of well-designed living space, this property features two bright reception rooms, a stunning modern kitchen, and a versatile downstairs bedroom that can also serve as an inviting snug. The garden room and landscaped backyard create an ideal oasis for relaxation and entertainment.
Nestled on a sought-after private road just a short distance from local amenities and the seafront, this home balances peaceful suburban living with convenient access to the vibrant village atmosphere. Each room is bathed in natural light, and the upstairs boasts two generously-sized double bedrooms, ensuring ample space for the entire family. With a garage and a spacious carriage driveway, parking will never be an issue.
However, prospective buyers should be aware of the very slow broadband speeds and higher council tax rates typical for the area. Don't miss out on this charming residence, a perfect blend of elegance and functionality that may not stay on the market long!
4 bedroom detached house for sale in Knightscroft Avenue, Rustington, Littlehampton, West Sussex, BN16 — £950,000 • 4 bed • 2 bath • 2246 ft²
3 bedroom detached house for sale in Knightscroft Avenue, Rustington, BN16 — £675,000 • 3 bed • 1 bath • 1467 ft²
3 bedroom detached house for sale in Cowdray Drive, Rustington, Littlehampton, BN16 — £590,000 • 3 bed • 2 bath • 1784 ft²
3 bedroom chalet for sale in Preston Avenue, Rustington, BN16 — £635,000 • 3 bed • 1 bath • 1454 ft²
3 bedroom chalet for sale in Hawke Close, Rustington, BN16 — £750,000 • 3 bed • 3 bath • 1749 ft²
3 bedroom detached house for sale in Sea Lane, Rustington, Littlehampton, West Sussex, BN16 — £460,000 • 3 bed • 1 bath • 1491 ft²






































































































































