Compact, energy-efficient detached home with sunny garden and parking.
A-rated EPC with solar panels and underfloor heating
Electric vehicle charging point and off-street parking
Sunny rear garden with bi-fold doors for entertaining
Chain-free sale with 10-year build warranty included
Compact internal size ~553 sq ft — limited storage/space
Listing described as new build; records indicate 1950–1966 construction — verify
Above-average local crime and higher area deprivation
Cavity walls noted (assumed no insulation) — check thermal performance
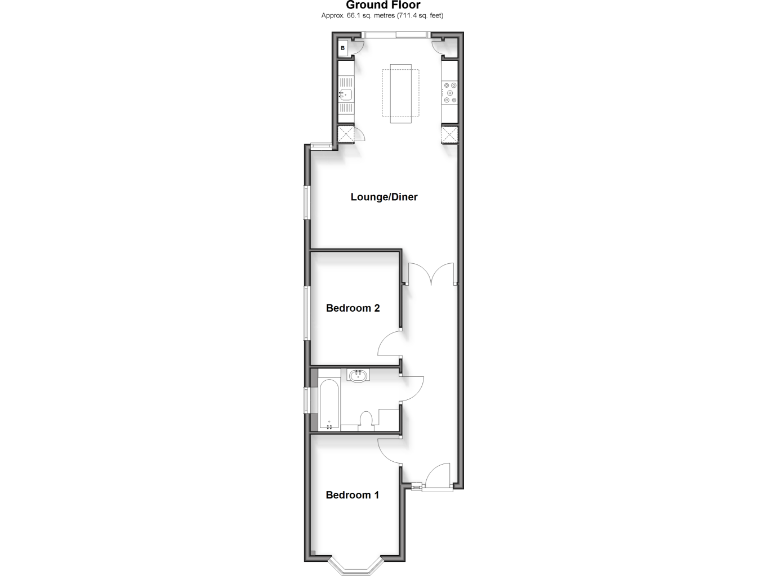
This two-bedroom detached bungalow offers low-running costs and modern comforts in a compact footprint. High-efficiency features — A-rated EPC, solar panels, underfloor heating and an electric-vehicle charging point — reduce bills and suit buyers wanting an easy-care home. The rear garden faces a sunny aspect with bi-fold doors that extend living outdoors, making the plot good for small social gatherings and quiet relaxation.
The interior is arranged for simple, single-level living: an L-shaped open-plan kitchen/lounge/diner and two bedrooms. The property is being sold chain-free and is offered with a 10-year build warranty, which will appeal to downsizers or buyers seeking a move-in-ready house without immediate works. Off-street parking is provided on the driveway.
Buyers should note a few material points before viewing. The listing describes the home as a new build, but records note original construction in 1950–1966 — this discrepancy and any structural or planning history should be checked by your solicitor. The overall internal size is small (about 553 sq ft), so storage and space are limited compared with larger family homes. Local area statistics show above-average crime and higher deprivation; consider location implications for daily life and resale.
Practical details: tenure is freehold, flood risk is low, mobile signal and broadband are strong, and nearby schools include several rated Good and one Outstanding. Internal images may include CGI; prospective buyers should verify measurements, fixtures, and services in person.
2 bedroom detached bungalow for sale in Manor Drive, Birchington, CT7 — £375,000 • 2 bed • 1 bath • 840 ft²
1 bedroom detached bungalow for sale in Old Green Road, Broadstairs, Kent, CT10 — £425,000 • 1 bed • 2 bath • 1091 ft²
2 bedroom detached bungalow for sale in St. Anthony's Way, Cliftonville, Margate, Kent, CT9 — £325,000 • 2 bed • 1 bath • 996 ft²
2 bedroom bungalow for sale in Beacon Road, Broadstairs, CT10 — £350,000 • 2 bed • 1 bath • 677 ft²
3 bedroom chalet for sale in Stanley Road, Broadstairs, Kent, CT10 — £525,000 • 3 bed • 2 bath • 971 ft²
2 bedroom semi-detached bungalow for sale in Bradstow Way, Broadstairs, Kent, CT10 — £375,000 • 2 bed • 1 bath • 603 ft²














































































