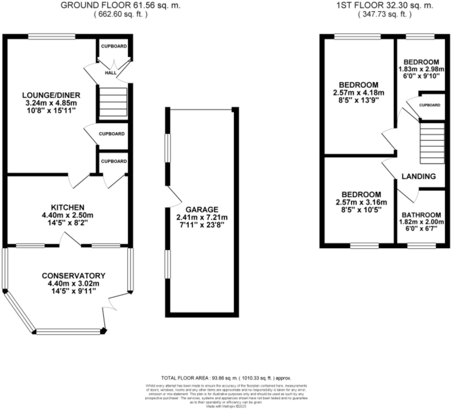
Three-bed semi with garage, conservatory and strong local schools nearby.
Chain free and priced for full renovation
A three-bedroom semi-detached home offered chain free and priced to reflect a full renovation requirement. The house provides a front living room, a generous kitchen and a large conservatory that looks onto a low-maintenance rear garden — straightforward spaces ready for updating.
Practical positives include a detached garage, off-road parking and fitted bedroom storage. The property sits in a popular Maghull location close to good and outstanding primary schools, secondary schools, regular bus routes and a nearby railway, making it suitable for families or buyers seeking rental income.
This is a clear project for buyers who can take on improvement works: the property needs comprehensive modernisation throughout but has sound fundamentals — double glazing installed post-2002, filled cavity walls, mains gas boiler and radiator heating, and an EPC C. The plot is small and the house is modest in size, so value is likely to be realised through interior reconfiguration, quality finishes or extension (subject to consents).
3 bedroom semi-detached house for sale in Turnbridge Road, Maghull, L31 — £180,000 • 3 bed • 1 bath • 868 ft²
3 bedroom semi-detached house for sale in Beechurst Road, Liverpool, Merseyside. L25 3QA, L25 — £270,000 • 3 bed • 1 bath • 651 ft²
3 bedroom semi-detached house for sale in Moss View, Maghull, Liverpool, L31 — £230,000 • 3 bed • 1 bath • 1063 ft²
3 bedroom semi-detached house for sale in Leathwood, Liverpool, Merseyside, L31 — £250,000 • 3 bed • 1 bath • 1157 ft²
3 bedroom semi-detached house for sale in Derwent Close, Maghull, Liverpool, L31 — £220,000 • 3 bed • 1 bath • 830 ft²
3 bedroom semi-detached house for sale in Millfield Close, Liverpool, Merseyside, L13 — £230,000 • 3 bed • 2 bath • 1336 ft²






































































