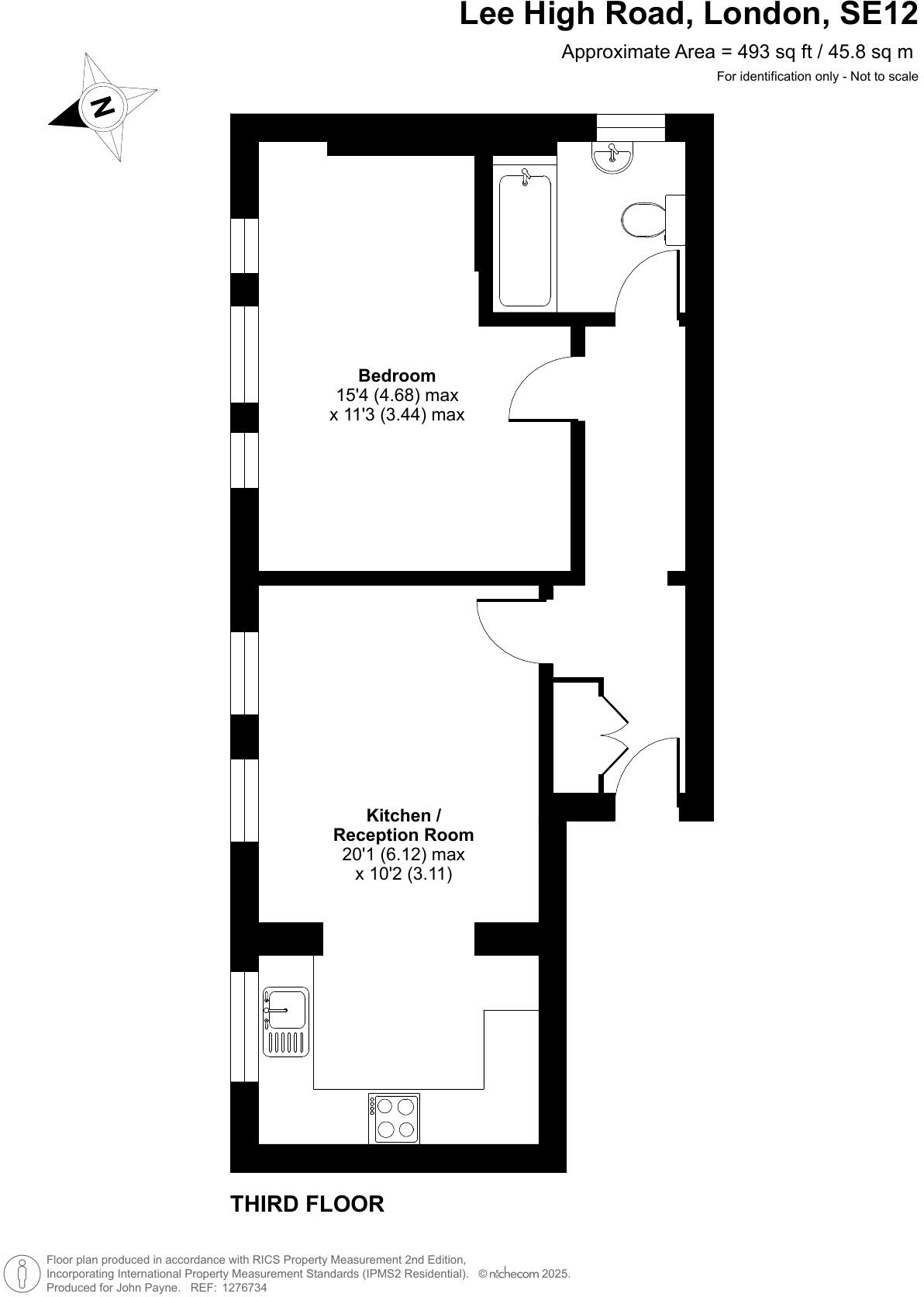
**Standout Features:**
- Top-floor, one-bedroom flat with open plan living/kitchen area
- Bright and airy space with ample natural light
- Spacious double bedroom with good storage potential
- Modern white bathroom suite with shower over bath
- Communal off-street parking available
- Excellent transport links to central London
- Close proximity to parks and local amenities
This charming top-floor one-bedroom flat is perfect for first-time buyers or investors seeking an attractive rental opportunity. The open plan lounge/kitchen creates a welcoming space, ideal for entertaining or unwinding after a long day. The well-proportioned double bedroom provides comfort and ample storage potential, complemented by a bright bathroom featuring a modern white suite.
Set in a popular area with easy access to local shops, cafes, and excellent public transport options, this property offers the ideal city living experience. Enjoy nearby green spaces like Greenwich Park and the vibrant atmosphere of Blackheath just a mile away, featuring boutique shops and delightful dining options. With a current lease of 145 years, low council tax, and a reasonable service charge, you’ll find both value and comfort in this appealing abode.
**Potential Considerations:**
While the flat is in good condition, some updates in the kitchen may enhance its appeal. Potential buyers should note the service charge of £1,100 and ground rent of £50 per annum. Don’t miss the opportunity to secure a property in this thriving community—it won’t be on the market for long!
1 bedroom flat for sale in Century House, Armoury Road, Deptford, London, SE8 — £260,000 • 1 bed • 1 bath • 464 ft²
1 bedroom flat for sale in Brandram Road, Lewisham, SE13 — £300,000 • 1 bed • 1 bath • 552 ft²
1 bedroom apartment for sale in Morley Road, London, SE13 — £225,000 • 1 bed • 1 bath • 502 ft²
1 bedroom flat for sale in Charlton Road, London, SE3 — £240,000 • 1 bed • 1 bath • 535 ft²
2 bedroom flat for sale in Lee Park, London, SE3 — £230,000 • 2 bed • 1 bath • 577 ft²
1 bedroom flat for sale in Burnt Ash Hill, Lee, SE12 — £200,000 • 1 bed • 1 bath • 466 ft²














































