**Standout Features:**
- **4 Bedrooms:** Includes garage conversion for flexible living
- **Large Living/Dining Area:** Spacious 23ft layout perfect for family gatherings
- **Substantial Garden:** Large outdoor space for recreation and gardening
- **Off-Road Parking:** Accommodates several vehicles, a rare find in urban settings
- **No Onward Chain:** Quick possession possible
- **Location:** Close to Caversham and Reading, with excellent transport links
**Potential Concerns:**
- Property may require some updates to modernize dated decor
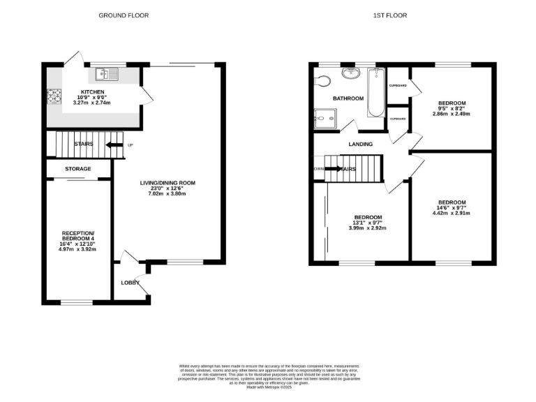
Nestled in the heart of Caversham, this end-of-terrace property offers a fantastic blend of space, comfort, and convenience, ideal for families or first-time buyers. With 4 well-proportioned bedrooms—including a versatile garage conversion that adds extra utility—this home features a generous 23ft living/dining room, 10ft kitchen, and a large garden perfect for outdoor activities and relaxation. Enjoy off-road parking for multiple vehicles, ensuring hassle-free coming and going.
With no onward chain, this property is ready for you to move in and make it your own. The location is ideal, surrounded by excellent schools and local amenities that cater to a variety of lifestyles. While the decor may be a bit dated, this offers a blank canvas for your personal touch and potential future renovations. Don't miss out on this rare opportunity—schedule a viewing today and envision your future in this charming home!
5 bedroom end of terrace house for sale in Douglas Road, Caversham, RG4 — £500,000 • 5 bed • 2 bath • 1475 ft²
3 bedroom end of terrace house for sale in Eliot Close, Emmer Green, RG4 — £395,000 • 3 bed • 1 bath • 850 ft²
3 bedroom end of terrace house for sale in Hemdean Road, Caversham, Reading, RG4 — £525,000 • 3 bed • 1 bath • 1500 ft²
3 bedroom semi-detached house for sale in Woodberry Close, Caversham, RG4 — £640,000 • 3 bed • 1 bath • 1130 ft²
4 bedroom semi-detached house for sale in Marsack Street, Caversham, RG4 — £480,000 • 4 bed • 2 bath • 915 ft²
3 bedroom terraced house for sale in Ian Mikardo Way, Caversham, RG4 — £375,000 • 3 bed • 2 bath • 1044 ft²














































































