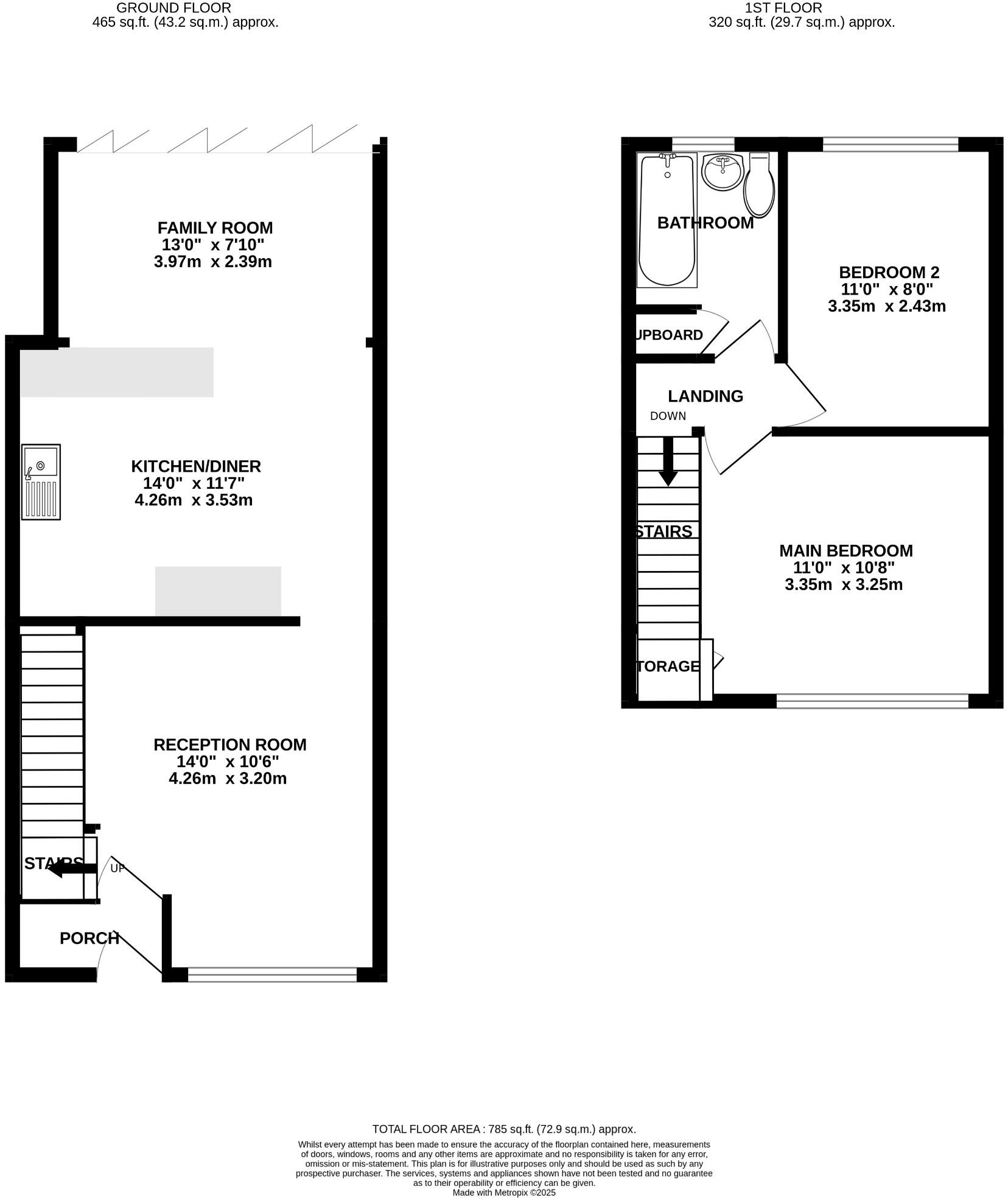
**Property Highlights:**
- Extended end of terrace house
- 2 bedrooms and modern bathroom
- Open plan family/dining/kitchen area with bi-fold doors
- Low maintenance rear garden and access to double garage
- Close to Allington Primary School (Ofsted Rated Outstanding)
- Access to local amenities and excellent transport links
This spacious two-bedroom extended end of terrace house in the sought-after Allington area presents a wonderful opportunity for families or investors. Embrace the comfort of an open plan living space featuring a contemporary kitchen with an island and bi-fold doors that seamlessly lead to a low-maintenance rear garden, perfect for entertaining or relaxing. A double garage provides secure parking and added storage, making life more convenient.
Located just moments from the highly rated Allington Primary School and surrounded by local amenities, this home is ideal for those prioritizing access to quality education and community living. While the property offers a decent size and modern features—such as double-glazing and gas central heating—it is important to note the crime rate is above average in the area, which potential buyers should consider.
With a council tax band of C and fast broadband speeds, this home is both affordable and ready for you to move in. Don’t miss out on making this well-situated property your own; opportunities like this in such a desirable neighborhood are rare!
2 bedroom terraced house for sale in Tintern Road, Allington,Maidstone ME16 — £319,995 • 2 bed • 1 bath • 640 ft²
2 bedroom terraced house for sale in Hildenborough Crescent, Allington, Maidstone ME16 — £290,000 • 2 bed • 1 bath • 684 ft²
2 bedroom terraced house for sale in Hildenborough Crescent, Allington ME16 — £299,995 • 2 bed • 1 bath • 658 ft²
2 bedroom terraced house for sale in Stockbury Drive, Allington, Maidstone ME16 — £295,000 • 2 bed • 1 bath • 640 ft²
2 bedroom terraced house for sale in The Weavers ,Allington, Maidstone ME16 — £325,000 • 2 bed • 1 bath • 760 ft²
3 bedroom semi-detached house for sale in Ash Grove, Allington, Maidstone ME16 — £500,000 • 3 bed • 1 bath • 1654 ft²


















































