LD3 9SD - 2 bedroom house for sale in Merthyr Cynog, Brecon, Powys, L…

View on Property Piper

2 bedroom house for sale in Merthyr Cynog, Brecon, Powys, LD3

Summary - Crosskeys, Merthyr Cynog LD3 9SD

2 bed 1 bath House

**Notable Features:**
- Two-bedroom period cottage in a serene rural hamlet
- Open plan living and kitchen area
- Charming character features including rustic beams and stone walls
- Manageable rear garden for outdoor enjoyment
- Freehold tenure with potential for renovation
- Low crime area, offering a secure living environment

**Concerns:**
- Broadband speeds are very slow, which may affect remote working
- Average mobile signal may limit connectivity
- Limited local amenities, predominantly agricultural community
- Property built before 1900; potential structural and insulation issues

Discover the allure of countryside living in this idyllic two-bedroom period cottage, nestled in the heart of Breconshire's tranquil rural hamlet. Bursting with character, this charming home features timber and stone accents, a cozy open-plan kitchen, and inviting living areas that seamlessly blend rustic charm with modern practicality. Ideal for first-time buyers or small families, the property boasts a manageable rear garden perfect for weekend relaxation or summer barbecues.

While this home offers picturesque views and a peaceful setting, it’s worth noting the limitations on broadband and mobile connectivity, as well as the older construction that may require future attention. However, the property's historic appeal and potential for personal touch make it a unique opportunity not to be missed. Embrace a slower, more enriching lifestyle—schedule a viewing today and imagine your future here!

Property Details

Brochure Descriptions

Image Descriptions

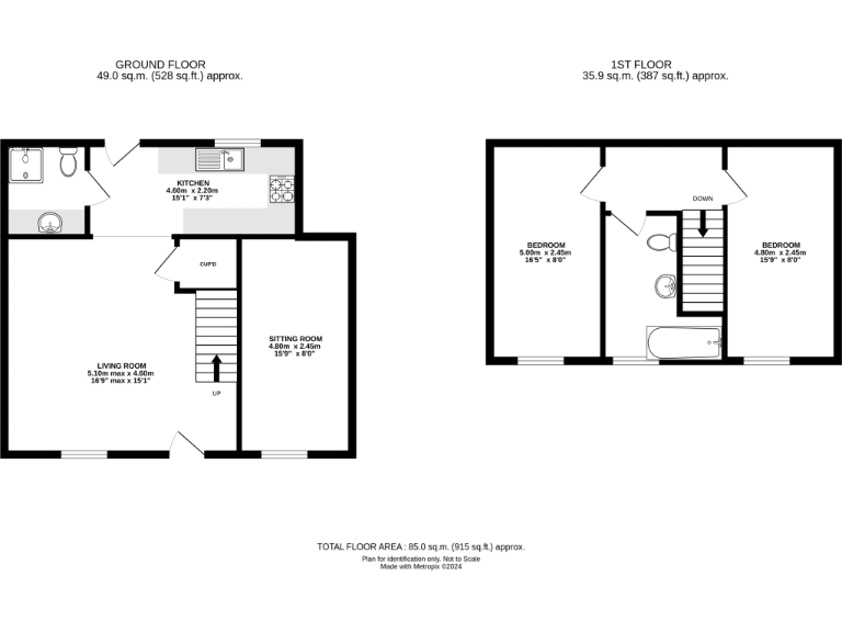
Floorplan Description

Rooms

Textual Property Features

Detected Visual Features

EPC Details

Nearest Bars And Restaurants

,,,,}

Nearest General Shops

,,}

Nearest Grocery shops

,,}

Nearest Supermarkets

,,}

Nearest Religious buildings

,,}

Nearest Medical buildings

,,,}

Nearest Leisure Facilities

,,,,}

Nearest Tourist attractions

,,}

Nearest Train stations

,,,,}

Nearest Bus stations and stops

,,,,}

Nearest Hotels

,,}

Tags

Local Market Stats

Similar Properties

Meta

High Res Images

Compatible Images

Low res Images

Thumbnails

Raw Images

High Res Floorplan Images

Compatible Floorplan Images

Low res Floorplan Images

FloorplanImages Thumbnail

Raw Floorplan Images