Energy-efficient new build on a large plot near village amenities.
Four bedrooms with en-suite to master and large family bathroom
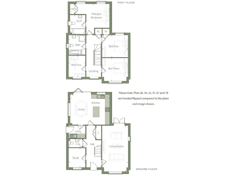
Plot 24, The Linum at Chattowood is a spacious four-bedroom detached home arranged for modern family life. The house offers a large entrance hall, study, triple-aspect living room with French doors, and an open-plan kitchen/family room with bi-folds opening to a substantial rear garden — ideal for children and entertaining. The master bedroom includes built-in wardrobes and an en-suite; three further bedrooms and a four-piece family bathroom complete the first floor.
Built as part of a new Lanswood development in Elmstead Market, the property features sustainable heating and energy options including an air-source heat pump and solar panels. A double garage with power and lighting plus driveway parking add practical, long-term value. The development benefits from good road links to Colchester and nearby stations, local shops, and well-rated primary and secondary schools.
Notable practical points: this is a new-build home with finishes and landscaping at different build stages. There is an annual management charge of £356.90 for communal upkeep and a pumping station servicing drainage. Broadband speeds in the area are reported as slow and mobile signal is average. Buyers should also note some finishing choices (brick colour, handed floorplans) vary by plot.
Overall, The Linum suits families seeking a contemporary, energy-efficient home on a large plot in a quiet village setting. It offers immediate move-in potential with modern fittings, while the development’s management arrangements and local connectivity are sensible considerations for longer-term ownership.
4 bedroom detached house for sale in Plot 28 The Linum, Chattowood, Linum Road, Elmstead Market, Colchester, CO7 — £595,000 • 4 bed • 2 bath
3 bedroom link detached house for sale in Plot 80 The Galium, Chattowood, Linum Road, Elmstead Market, Colchester, CO7 — £395,000 • 3 bed • 2 bath
4 bedroom detached house for sale in Plot 27 The Carlina, Chattowood, Linum Road, Elmstead Market, Colchester, CO7 — £575,000 • 4 bed • 2 bath
3 bedroom terraced house for sale in Plot 84 The Morina, Chattowood, Rosa Road, Elmstead Market, Colchester, CO7 — £325,000 • 3 bed • 2 bath • 994 ft²
3 bedroom detached house for sale in Plot 18 The Paris, Chattowood, Linum Road, Elmstead Market, Colchester, CO7 — £425,000 • 3 bed • 2 bath • 1209 ft²
4 bedroom detached house for sale in Plot 15 The Iris, Chattowood, Linum Road, Elmstead Market, Colchester, CO7 — £515,000 • 4 bed • 2 bath










































































































