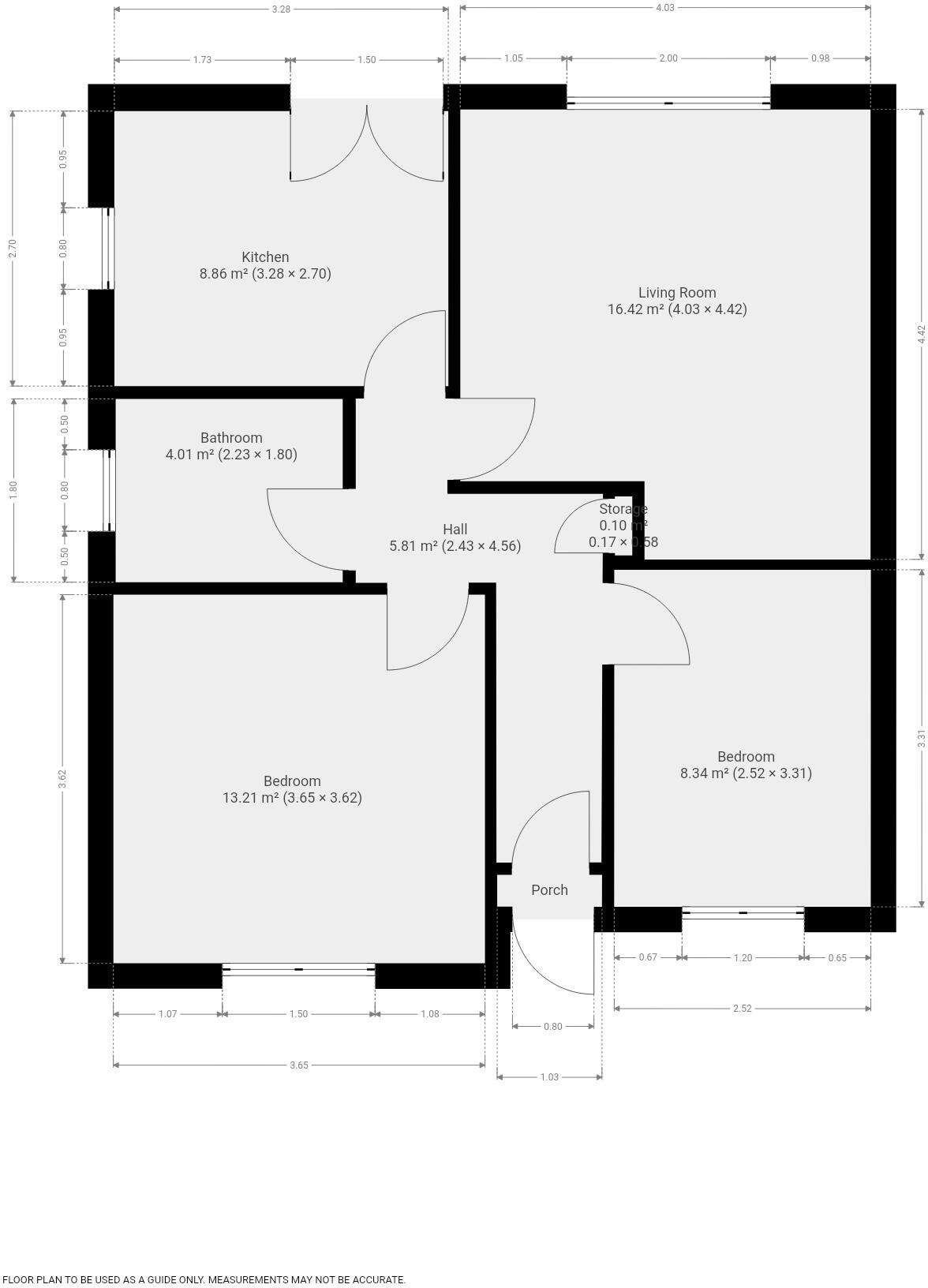
**Standout Features:**
- Two-bedroom bungalow
- Detached garage and driveway for two vehicles
- Fitted kitchen with integrated appliances
- Bright and airy living space
- Spacious, well-maintained rear garden
- Ground floor with wheelchair accessibility
- Chain-free sale, ready for immediate occupancy
- Located in a desirable Evington cul-de-sac
**Potential Concerns:**
- Overall size is average at 624 sq ft
- Upkeep needed for exterior and garden maintenance
Discover your peaceful retreat in this charming two-bedroom bungalow located in the desirable Oakside Close, Evington. Ideal for families, retirees, or investors, this chain-free home features a fitted kitchen with quality appliances and a spacious living room that welcomes natural light. Enjoy the well-maintained rear garden for outdoor activities or relaxation, along with the convenience of a detached garage and driveway parking for two vehicles.
With excellent transport links and local amenities including reputable schools and places of worship nearby, this property offers both comfort and practicality. Vacant possession upon completion ensures a smooth transition into your new home. Don’t miss out on this prime opportunity—schedule a viewing today!
2 bedroom detached bungalow for sale in Oakside Crescent, Evington, Leicester, LE5 — £325,000 • 2 bed • 1 bath • 807 ft²
3 bedroom detached bungalow for sale in Spencefield Lane, Evington, Leicester, LE5 — £795,000 • 3 bed • 3 bath • 2531 ft²
3 bedroom detached bungalow for sale in Sunnyfield Close, Evington, Leicester, LE5 — £350,000 • 3 bed • 1 bath • 840 ft²
3 bedroom bungalow for sale in Oakside Close, Evington, Leicester, LE5 — £400,000 • 3 bed • 2 bath • 1597 ft²
2 bedroom bungalow for sale in Radiant Road, Leicester, Leicestershire, LE52HR, LE5 — £309,995 • 2 bed • 1 bath • 581 ft²
2 bedroom bungalow for sale in Stanley Drive, Humberstone, LE5 — £250,000 • 2 bed • 1 bath • 659 ft²


































































