Vacant, chain-free family home with garage and enclosed garden.
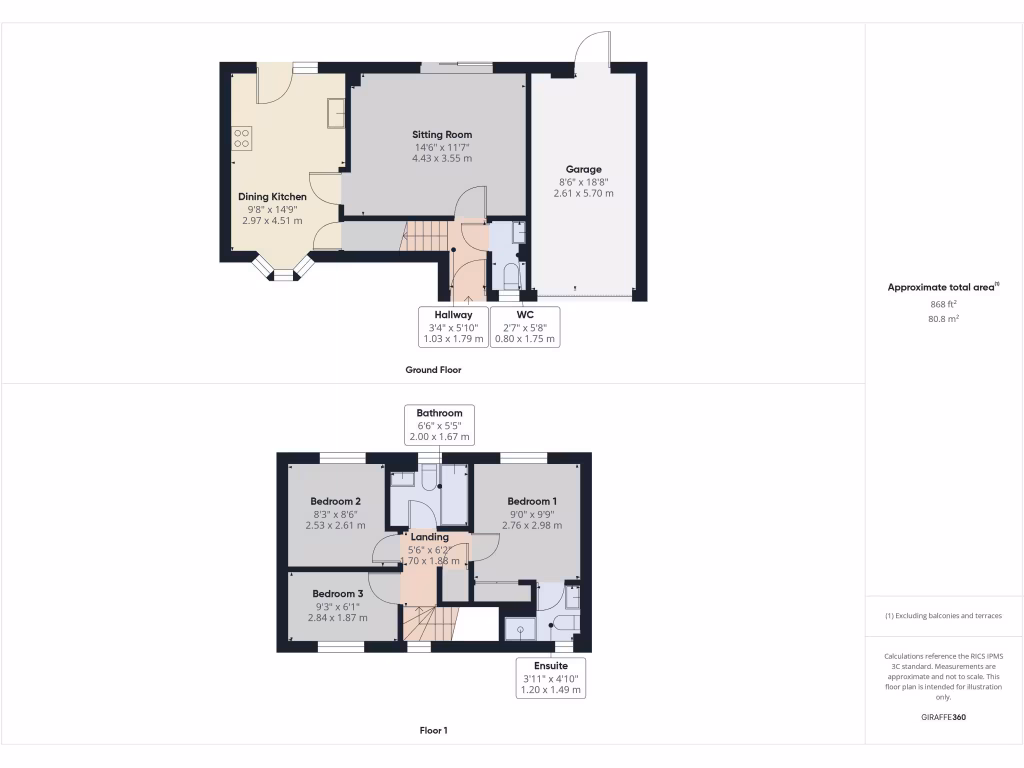
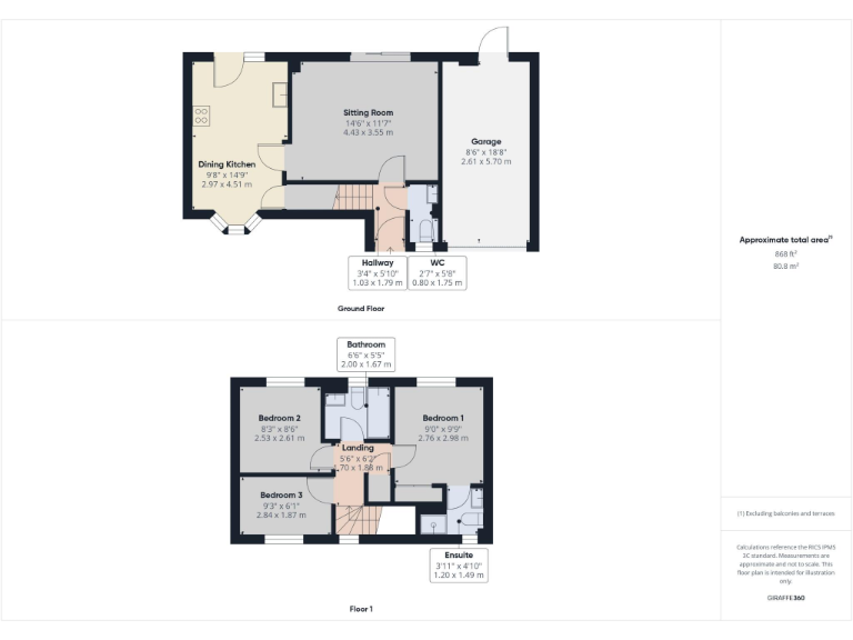
Three-bedroom detached house with ensuite and family bathroom
This well-maintained three-bedroom detached house, built around 2000, sits on a decent plot in a quiet Oundle neighbourhood. The ground floor offers a living room with patio doors to a private, fully enclosed garden and a dining kitchen with space for family meals. Upstairs are three bedrooms, including a main bedroom with en-suite, plus a family bathroom.
Practical features include a single garage with rear access, additional off-road parking, fast broadband, and low local crime. The property is vacant and offered chain free, making it suitable for families wanting a prompt move or buyers seeking a straightforward rental opportunity in a very affluent area.
Considerations: the home is of average overall size (approximately 868 sq ft), so living spaces are compact compared with larger detached houses. Tenure is listed as unknown and services/appliances have not been tested, so purchasers should verify legal and utility details before exchange. No flood risk is recorded.
Local amenities include good primary and secondary schools and a mix of independent schooling nearby, plus pubs, leisure facilities and countryside close by, making this an attractive family-friendly location.
3 bedroom detached house for sale in Nene View, Oundle, PE8 — £340,000 • 3 bed • 1 bath • 926 ft²
4 bedroom detached house for sale in Sutton Road, Oundle, Peterborough, PE8 — £500,000 • 4 bed • 2 bath • 1740 ft²
4 bedroom detached house for sale in Hillfield Road, Oundle, Peterborough, PE8 — £515,000 • 4 bed • 2 bath • 1185 ft²
5 bedroom detached house for sale in Herons Wood Close, Oundle, Peterborough, PE8 — £750,000 • 5 bed • 4 bath • 2142 ft²
3 bedroom terraced house for sale in Bridge View, Oundle, Peterborough, PE8 — £290,000 • 3 bed • 2 bath • 1085 ft²
3 bedroom detached house for sale in Oundle Walk,
St Christopher's Drive,
Oundle,
PE8 — £415,000 • 3 bed • 1 bath • 623 ft²














































