Turn‑key four-bedroom home with large garden and garage, ready for family life.
Four double bedrooms including master with en‑suite and built‑in wardrobe option
Large open-plan living/dining/kitchen with walk-in bay and French doors
Integral single garage plus wide driveway for multiple cars
Roof solar PV fitted to reduce energy running costs
Utility room and ground-floor cloakroom for practical family use
Plot-specific finishes and appliances can vary; confirm with developer
Optional upgrades available but will incur additional costs
Council tax banding above average; exact band to be confirmed
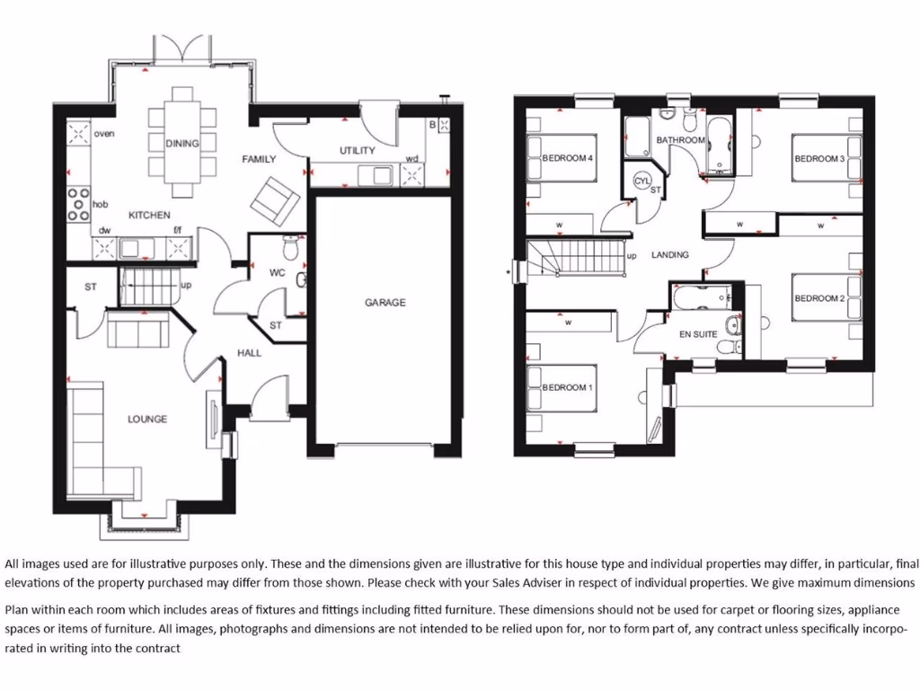
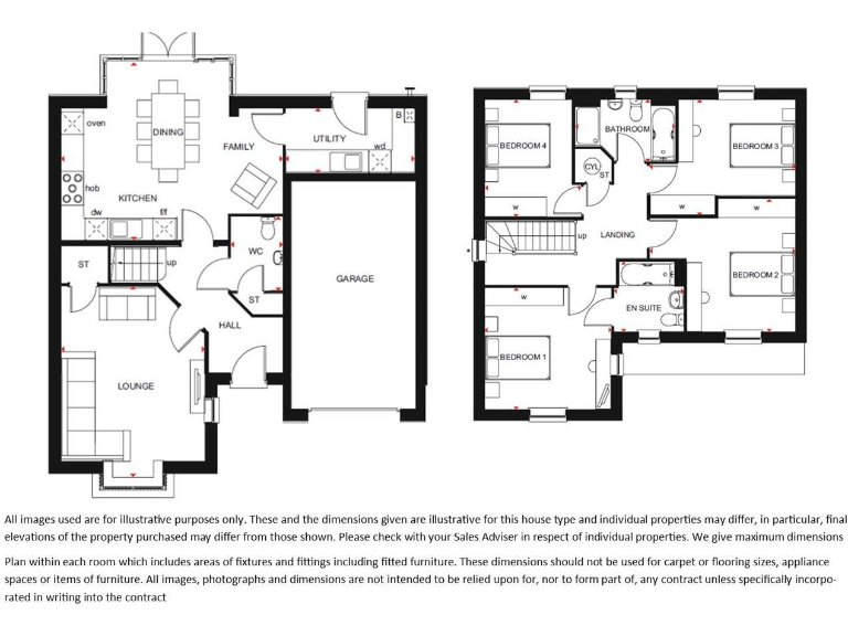
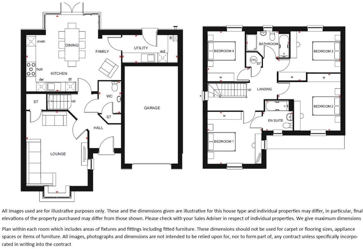
This modern four-double-bedroom detached new build on Marley Way is laid out for everyday family life and entertaining. The bright open-plan living/dining/kitchen with walk-in bay and French doors creates strong indoor–outdoor flow to a large, fenced rear lawn. A separate lounge, utility room and ground-floor guest cloakroom add useful flexibility for families.
Practical features include an integral single garage, wide driveway parking for several cars, and roof-mounted solar PV to help running costs. The master bedroom benefits from an en-suite and there is a four-piece family bathroom on the first floor. The internal finish is contemporary and move-in ready, with new floor coverings and selected upgrades already fitted.
Important points to note: this is a developer plot sale so fitted kitchens, appliances, floor coverings and built-in items can vary between plots and optional upgrades incur extra cost. Council tax is above average and the exact council tax band and EPC for the specific plot will be confirmed by the developer before exchange. The postcode shown may relate to the site office and should be confirmed prior to finance applications.
Overall, the house offers a low-maintenance, turn-key option for a family seeking space, modern energy-efficiency and off-street parking. Buyers wanting absolute specification certainty should check the individual plot sales pack and confirm any chosen upgrades and final room measurements with the developer.
4 bedroom detached house for sale in Marley Way, Drakelow, Burton on Trent, DE15 — £334,995 • 4 bed • 2 bath • 855 ft²
5 bedroom detached house for sale in Marley Way, Drakelow, DE15 — £550,000 • 5 bed • 3 bath • 2315 ft²
3 bedroom semi-detached house for sale in Marley Way, Drakelow, Burrton on Trent, DE15 — £304,995 • 3 bed • 2 bath • 1006 ft²
4 bedroom detached house for sale in Marley Way, Drakelow, DE15 — £375,000 • 4 bed • 2 bath • 1351 ft²
4 bedroom detached house for sale in Acacia Lane,
Branston,
Burton-On-Trent,
DE14 3FW, DE14 — £395,000 • 4 bed • 1 bath • 1371 ft²
4 bedroom detached house for sale in Walton Road,
Drakelow,
DE15 9UA, DE15 — £414,995 • 4 bed • 1 bath • 1224 ft²






























































