BH20 5AP - 3 bed thatched purbeck cottage in East Creech, Creech, BH20…

View on Property Piper

3 bedroom detached house for sale in East Creech, BH20

Summary - WREN COTTAGE EAST CREECH WAREHAM BH20 5AP

3 bed 1 bath Detached

Charming Grade II thatched cottage with triple garage and south garden in peaceful Purbeck hamlet.
Grade II listed thatched cottage with many original features
South-facing garden with rural pond and attractive countryside views
New farmhouse-style kitchen extension; presented in renovated condition
Detached triple garage and summerhouse/workshop; ample parking
Sold chain-free; available as turn-key with furniture by negotiation
Very slow broadband; poor for heavy home-working or streaming
Listed status restricts alterations and may increase maintenance costs
Cavity walls likely uninsulated; heating costs may be higher
Wren Cottage is a renovated Grade II listed thatched cottage set in the heart of Purbeck, offering a blend of period character and modern comfort. The house has been sympathetically refurbished with flagstone floors, exposed beams and an inglenook fireplace, while a recent kitchen extension provides a farmhouse-style dining space. The south-facing garden, over-looking a village pond, and the detached triple garage with workshop/summerhouse add practical appeal for vehicle or hobby enthusiasts.

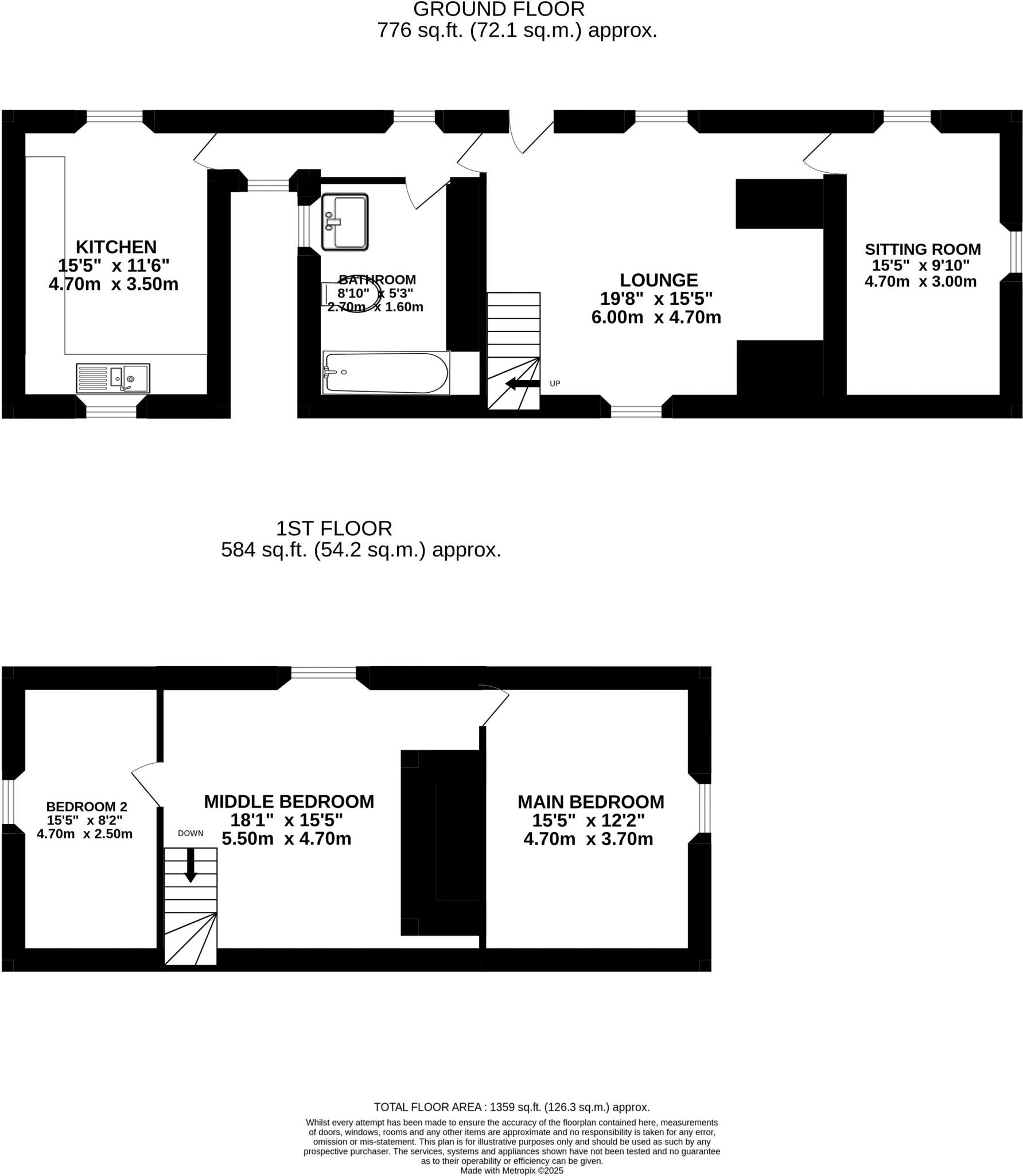
The property is sold chain-free and can be bought as a turn-key purchase with most furniture (by separate negotiation), making it an attractive option for buyers seeking an immediate move into a character home. The layout includes two principal bedrooms plus a versatile upstairs room that can function as a study, dressing room or third bedroom, and a generous ground-floor bathroom.

Important considerations: listed status means repairs, alterations or extensions will be restricted and require listed-building consent. Broadband speeds are very slow and the double glazing pre-dates 2002. Walls are cavity as-built with no added insulation (assumed), so heating costs may be higher than a modern build despite mains gas central heating. The cottage's thatch and character features will require ongoing specialist maintenance.

This property will suit buyers who value rural character, walking and cycling access and a peaceful hamlet setting. It particularly appeals to downsizers or those seeking a second/holiday home in Dorset who accept the responsibilities of maintaining a listed thatch property.

Property Details

Brochure Descriptions

Image Descriptions

Floorplan Description

Rooms

Textual Property Features

Target Audience

AI Tags

Detected Visual Features

EPC Details

Nearby Schools

Nearest Bars And Restaurants

,,,,}

Nearest General Shops

,,}

Nearest Grocery shops

,,}

Nearest Supermarkets

,,}

Nearest Religious buildings

,,}

Nearest Medical buildings

,,,}

Nearest Airports

}

Nearest Leisure Facilities

,,,,}

Nearest Tourist attractions

,,}

Nearest Train stations

,,,,}

Nearest Bus stations and stops

,,,,}

Nearest Hotels

,,}

Tags

Local Market Stats

Similar Properties

Meta

High Res Images

Compatible Images

Low res Images

Thumbnails

Raw Images

High Res Floorplan Images

Compatible Floorplan Images

Low res Floorplan Images

FloorplanImages Thumbnail

Raw Floorplan Images