**Standout Features:**
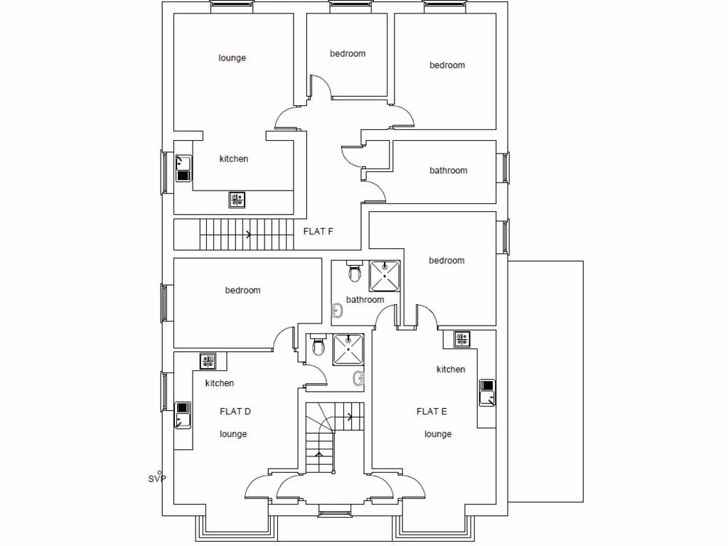
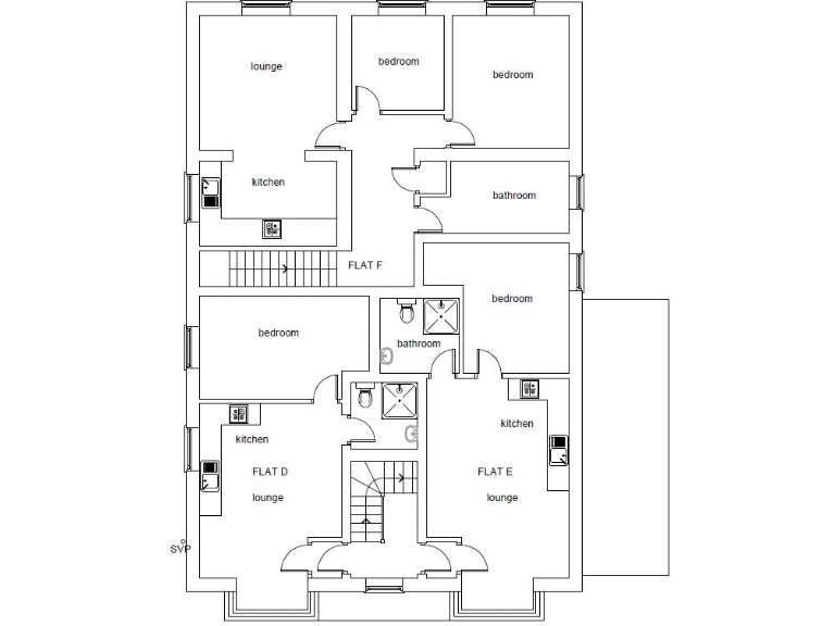
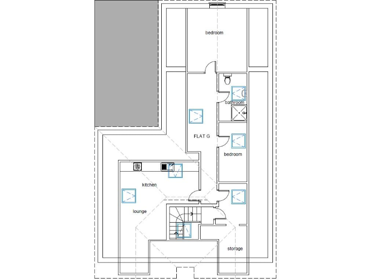
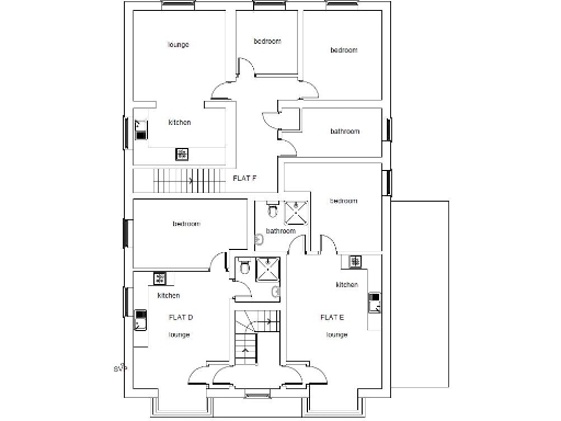
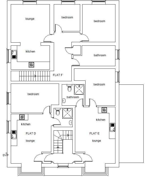
- **Exclusive Freehold Investment**: 7 well-designed residential units on assured shorthold tenancies.
- **High-End Finishes**: Luxurious kitchens, modern bathrooms, oak doors, and quality flooring.
- **Desirable Location**: Less than 2 miles from Gatwick Airport and 1 mile from Horley train station, providing excellent transport links.
- **Amenities & Recreation**: Proximity to supermarkets, public transport, and outdoor recreational facilities.
- **Low Crime Rate**: Located in an affluent area, offering peace of mind for residents and tenants.
**Summary:**
Discover an exceptional freehold investment opportunity in Horley with this exclusive development of seven one and two-bedroom units, all currently let under assured shorthold tenancies. Each apartment boasts high-end fittings, from luxurious kitchens to elegantly designed bathrooms, ensuring comfortable living for tenants and attractive returns for investors.
Located just a mile from Horley’s mainline train station and under two miles from Gatwick Airport, this property offers fantastic connectivity alongside the convenience of local amenities and lush recreational areas. With private storage for each unit and expansive communal grounds, this low-maintenance investment won’t last long in the current market. Whether you are an investor looking to add to your portfolio or seeking a solid rental opportunity in a desirable area, this property provides excellent potential with room for further development or enhancement in the future. Don’t miss out on securing your stake in this thriving locale!
Plot for sale in Church Road, Horley, Surrey, RH6 — £825,000 • 1 bed • 1 bath • 4596 ft²
2 bedroom apartment for sale in Oakside Court, Horley, Surrey, RH6 — £240,000 • 2 bed • 1 bath • 639 ft²
1 bedroom flat for sale in Willow Court, Skipton Way, Horley, Surrey, RH6 — £190,000 • 1 bed • 1 bath • 500 ft²
2 bedroom apartment for sale in 12 - 14 High Street, HORLEY, Surrey, RH6 — £200,000 • 2 bed • 1 bath • 506 ft²
1 bedroom ground floor flat for sale in Willow Court, Skipton Way, Horley, Surrey, RH6 — £185,000 • 1 bed • 1 bath • 437 ft²
3 bedroom semi-detached house for sale in Massetts Road, Horley, RH6 — £650,000 • 3 bed • 2 bath • 990 ft²






















