Small freehold plot with consent for three four-bedroom houses, ideal for local builders.
Planning permission for three detached four‑bed homes (DM/23/00859/FPA)
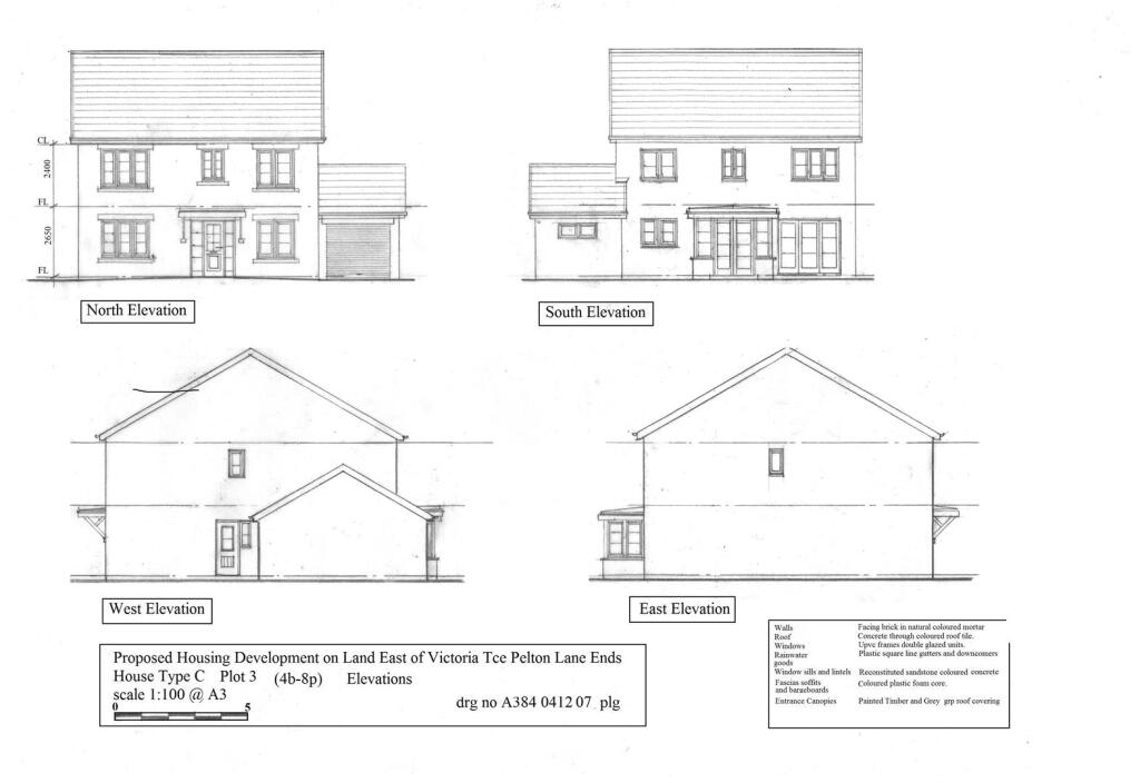
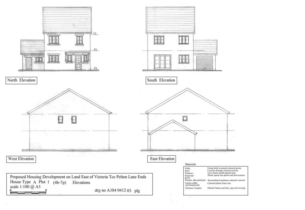
A rare small development opportunity on the edge of Pelton with planning permission for three detached four‑bed homes. The freehold plot sits to the rear of Victoria Terrace and benefits from consent under planning reference DM/23/00859/FPA (also cited as DM/23/00589/FPA). Each proposed house has its own substantial garden area, making the scheme suitable for a local builder or property developer.
The site is currently overgrown and will require clearance and site preparation before work begins. There are no internal buildings shown and no EPC; interested buyers should rely on the planning and legal pack and arrange an on‑site inspection and technical surveys. The plot is offered via an unconditional online auction with a Guide Price of £165,000; purchasers should note the sale conditions and consult the legal pack.
Bidders must budget for auction costs beyond the purchase price: a non-refundable administration fee of £3,000 (inc. VAT) and a 10% deposit (minimum £5,000) on exchange. The sale will complete under the auction’s standard conditions and may include additional seller fees detailed in the special conditions, so allow time to review title and planning documentation before bidding.
The location delivers semi‑rural outlooks with nearby village services at Newfield and Pelton Fell and straightforward access to Chester‑le‑Street and the A693. This plot is best suited to developers or experienced builders seeking a small, permitted residential project rather than an owner‑occupier requiring immediate accommodation.
Plot for sale in Fair View, Esh Winning, Durham, DH7 — £180,000 • 1 bed • 1 bath
Land for sale in Land At Back John Street, Meadowfield, Durham, DH7 — £295,000 • 1 bed • 1 bath • 20473 ft²
Land for sale in Land At Annfield Plain, Mordue Terrace, Annfield Plain, County Durham, DH9 — £60,000 • 3 bed • 2 bath • 374 ft²
Land for sale in Land East Of Railway Villa, Granville Avenue, DH9 — £50,000 • 1 bed • 1 bath • 2719 ft²
Commercial development for sale in Greencroft Industrial Park, County Durham, DH9 — £650,000 • 1 bed • 1 bath
Land for sale in Glenbrooke Terrace, Low Fell, NE9 — £130,000 • 1 bed • 1 bath • 1798 ft²


















































