**Standout Features:**
- Modern 3-bedroom penthouse
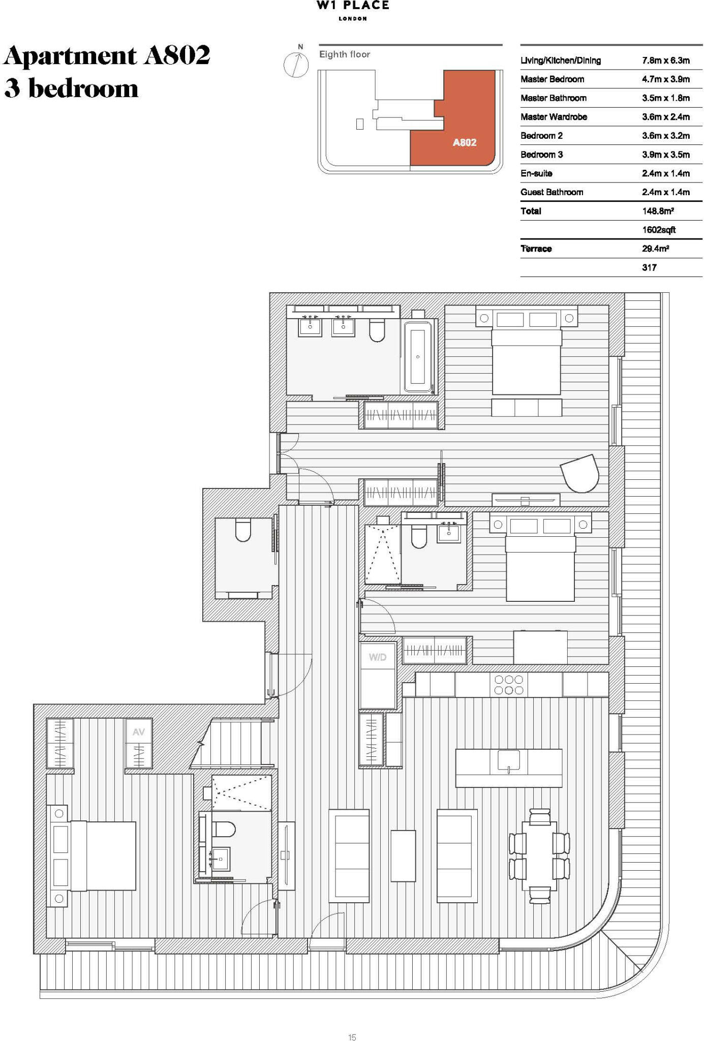
- 1,602 sq ft of interior space with floor-to-ceiling windows
- Over 800 sq ft outdoor space featuring a private rooftop terrace
- High-quality modern kitchen with marble countertops and integrated appliances
- En suite bathrooms in each bedroom
- Concierge service and excellent mobile/broadband connectivity
- Situated in multicultural Marylebone with nearby amenities and transport
**Concerns:**
- Located in a high-crime area, which may impact safety perception
Discover an extraordinary penthouse retreat in the heart of Marylebone, where modern design meets refined luxury. Spanning a generous 1,602 square feet, this stunning property is flooded with natural light from its expansive floor-to-ceiling windows and offers breathtaking views from its exclusive rooftop terrace—perfect for entertaining or simply soaking in the city. The contemporary kitchen, complete with a stylish island and marble finishes, complements the spacious open-plan living area, creating an ideal setting for both relaxation and social gatherings.
This new build features three spacious bedrooms, each accompanied by en suite bathrooms, ensuring ultimate privacy and comfort for families or professionals. With a concierge service and a prime location surrounded by vibrant cafés, shops, and easy access to public transport, convenience is at your doorstep. However, potential buyers should be mindful of the high crime rate in the area. This penthouse appeals to discerning individuals and families alike who seek a cosmopolitan lifestyle with ample renovation potential. Don’t miss this exclusive opportunity—properties of this caliber are rare and sell quickly!
 3 bedroom penthouse for sale in W1 Place, Great Portland Street, London, W1W — £6,815,000 • 3 bed • 3 bath • 1602 ft²
 3 bedroom penthouse for sale in W1 Place, Great Portland Street, London, W1W — £6,815,000 • 3 bed • 3 bath • 1602 ft² 2 bedroom penthouse for sale in Portland Place, London, W1B — £5,750,000 • 2 bed • 2 bath • 2122 ft²
 2 bedroom penthouse for sale in Portland Place, London, W1B — £5,750,000 • 2 bed • 2 bath • 2122 ft² 4 bedroom penthouse for sale in Bickenhall Mansions, Bickenhall Street, Marylebone, London, W1U, United Kingdom, W1U — £6,950,000 • 4 bed • 3 bath • 4044 ft²
 4 bedroom penthouse for sale in Bickenhall Mansions, Bickenhall Street, Marylebone, London, W1U, United Kingdom, W1U — £6,950,000 • 4 bed • 3 bath • 4044 ft² 2 bedroom penthouse for sale in Bolsover Street, London, W1W — £3,250,000 • 2 bed • 3 bath • 1389 ft²
 2 bedroom penthouse for sale in Bolsover Street, London, W1W — £3,250,000 • 2 bed • 3 bath • 1389 ft² 3 bedroom penthouse for sale in Marylebone Mansions, Marylebone, W1H — £4,250,000 • 3 bed • 4 bath • 1694 ft²
 3 bedroom penthouse for sale in Marylebone Mansions, Marylebone, W1H — £4,250,000 • 3 bed • 4 bath • 1694 ft² 3 bedroom penthouse for sale in Bickenhall Street, Marylebone, W1U — £6,950,000 • 3 bed • 2 bath • 3737 ft²
 3 bedroom penthouse for sale in Bickenhall Street, Marylebone, W1U — £6,950,000 • 3 bed • 2 bath • 3737 ft²






































































































